EasyManua.ls Logo

Fox Thermal FT3 - Dimensions

Default Icon
140 pages
Print Icon
To Next Page IconTo Next Page
To Next Page IconTo Next Page
To Previous Page IconTo Previous Page
To Previous Page IconTo Previous Page
Loading...
4.6
(11.7)
3.9
(9.9)
8.1
(20.6)
2X 3/4” NPT, FEMALE
“LL”
6.5
(16.5)
0.87
(2.2)
10.75±.13
(27.3 ±.33)
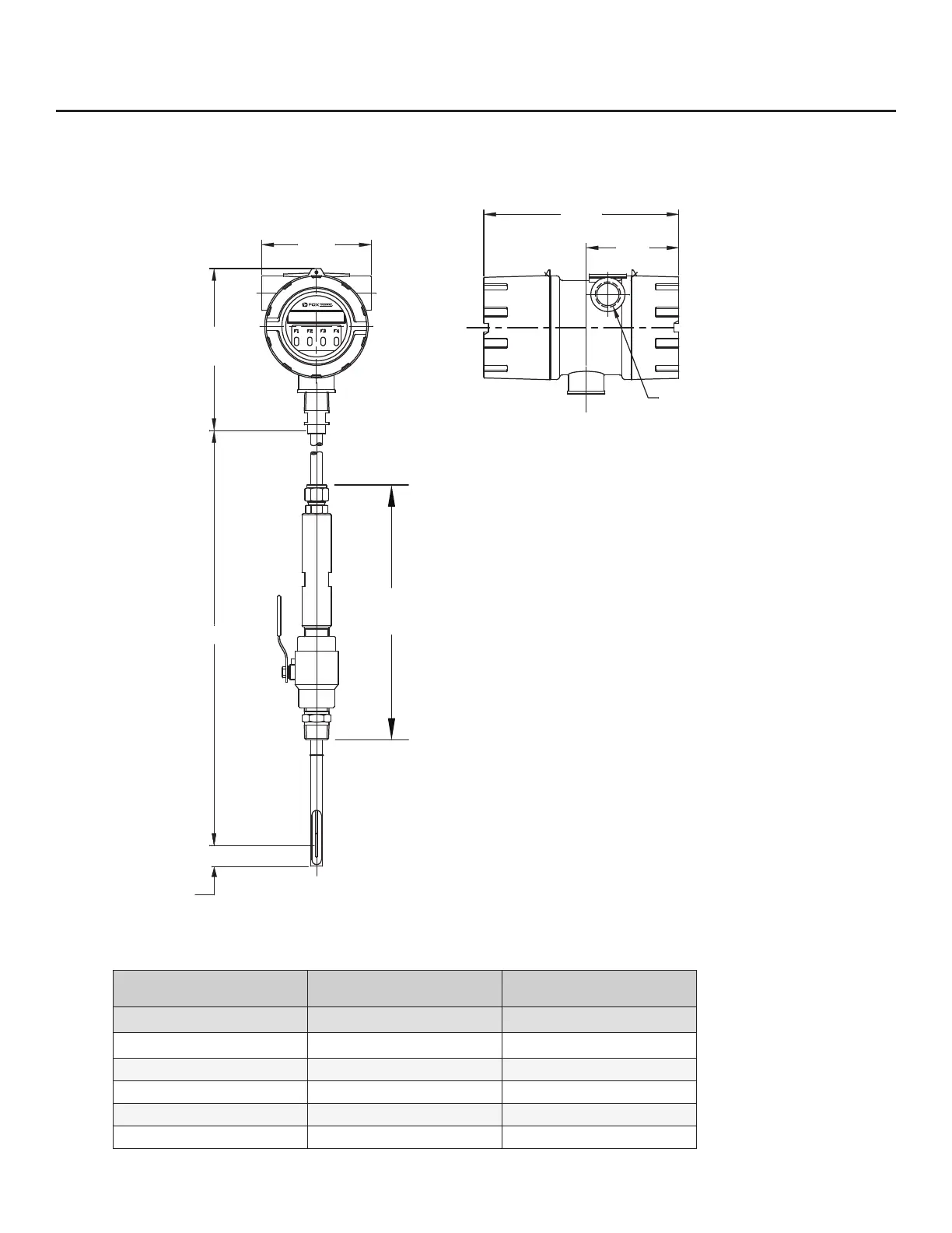
Fig. 8.1: Insertion Meter with Retractor Dimensions
Dimensions shown in inches (millimeters).
Appendix | 126
Model FT3
Appendix
Table 8.1: Insertion Meter with 316 stainless steel probe
Probe Size
Probe Size Dimension “LL” ± .10
[model code] [inches] [inches / millimeters]
15R 15" 15.0" (381mm)
18R 18" 18.0" (457mm)
24R 24" 24.0" (609mm)
30R 30" 30.0" (762mm)
36R 36" 36.0" (914mm)

Other manuals for Fox Thermal FT3