EasyManua.ls Logo

Fox Thermal FT3 - Page 133

Default Icon
140 pages
Print Icon
To Next Page IconTo Next Page
To Next Page IconTo Next Page
To Previous Page IconTo Previous Page
To Previous Page IconTo Previous Page
Loading...
Appendix | 133
Model FT3
Appendix
2x 3/4 inch NPT Female
“H”
“L”
L
C
4.6
(11.7)
5.2
(13.2)
2X Flange, Raised Face, ANSI B16.5, 316 SST
8.1
(20.6)
4.3
(10.9)
F1 F2
F3 F4
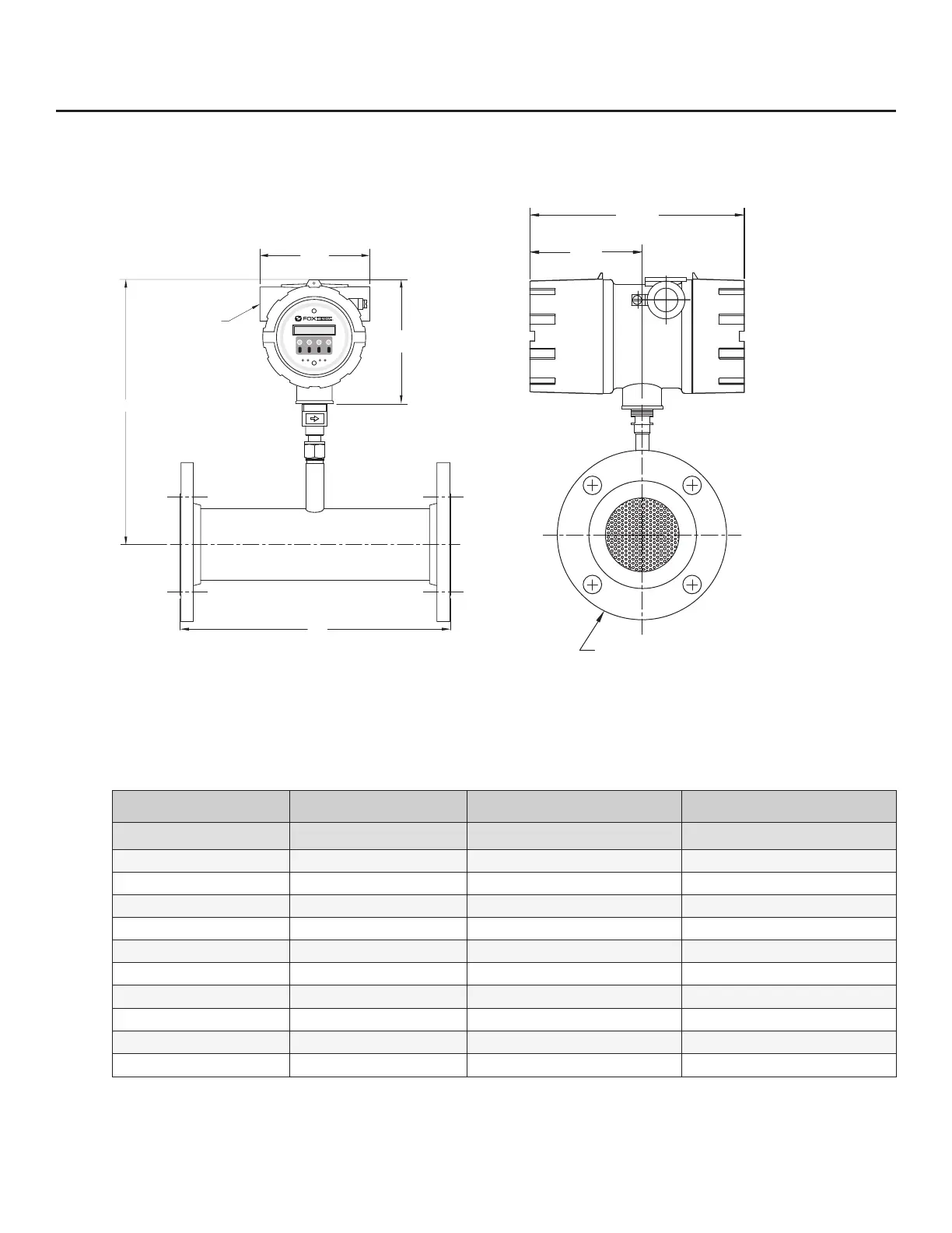
Fig. 8.8: Inline Meter with Flow Body and 150 lb. RF Flange End Connections Dimensions
Table 8.8: Inline Meter with Flow Body and 150 lb. RF Flange End Connections Dimensions
*Available in 316 stainless steel only.
**Available in 316 stainless steel or A106 Grade B Carbon steel pipe.
Body Size Body Size Dimension “L” ± .10 Dimension “H” ± .10
[model code] [inches] [inches] [inches / millimeters]
05F * 0.50" 12" 10.5" (267mm)
075F * 0.75" 12" 10.5" (267mm)
10F * 1.00" 12" 10.5" (267mm)
125F * 1.25" 12" 10.5" (267mm)
15F * 1.50" 12" 10.5" (267mm)
20F ** 2.00" 12" 10.5" (267mm)
25F ** 2.50" 18" 10.6" (269mm)
30F ** 3.00" 18" 12.5" (318mm)
40F ** 4.00" 18" 12.5" (318mm)
60F ** 6.00" 24" 12.5" (318mm)

Other manuals for Fox Thermal FT3