EasyManua.ls Logo

Friedrich FPHW093B - Dimensions FPHSR18 A3 B

Friedrich FPHW093B
103 pages
Print Icon
To Next Page IconTo Next Page
To Next Page IconTo Next Page
To Previous Page IconTo Previous Page
To Previous Page IconTo Previous Page
Loading...
17 PB
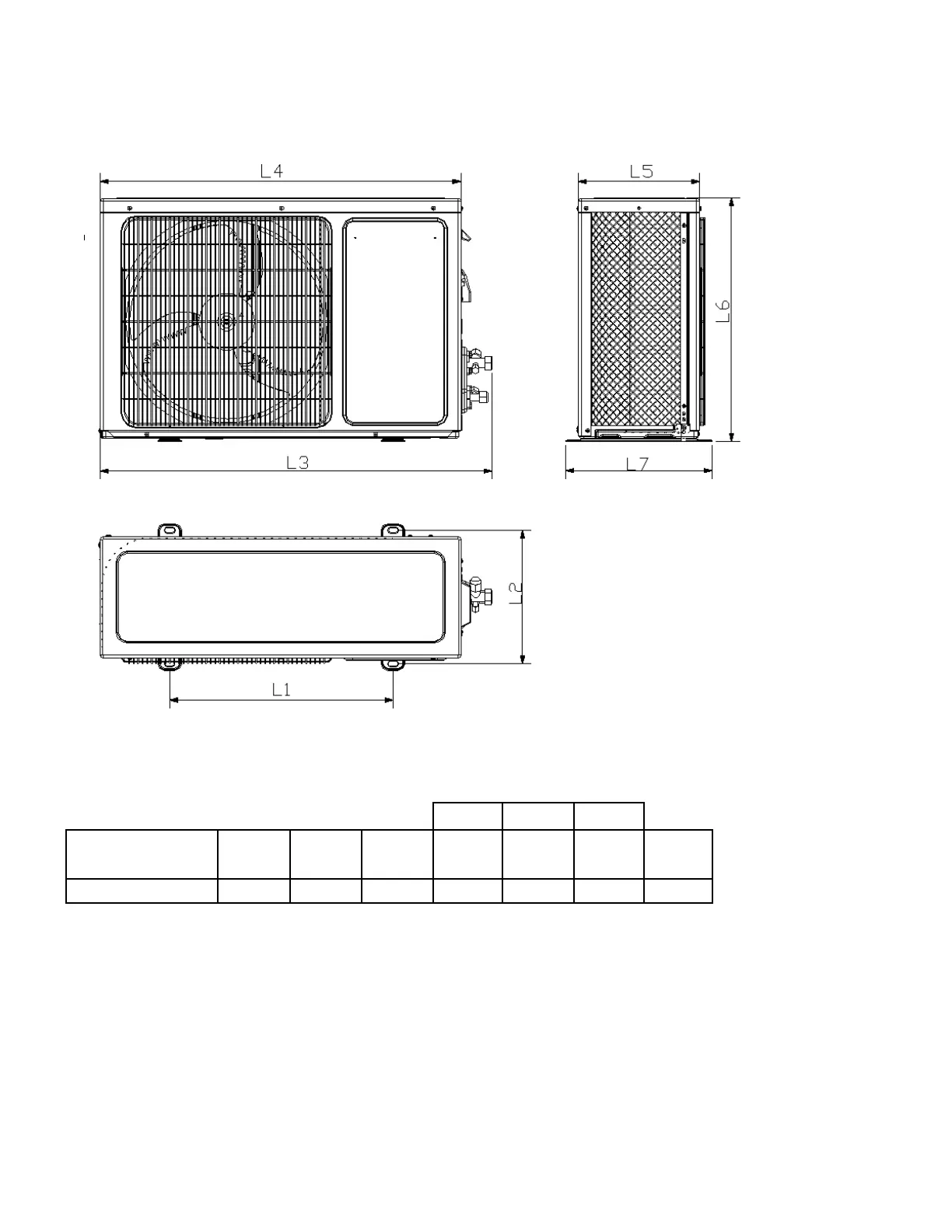
SPECIFICATIONS
Dimensions FPHSR18A3B
DIMENSIONAL DRAWINGS
OUTDOOR UNITS / FPHSR18A3B, FPHSR24A3B
12
Outdoor units:
Width Depth Height
L1 L2 L3 L4 L5 L6 L7
Model (in.) (in.) (in.) (in.) (in.) (in.) (in.)
FPHSR18A3B
21 11/32 12 19/32 34 7/8 33 7/8 12 1/4 25 5/8 13
Figure 208 (18k Outdoor Unit Dimensions)

Table of Contents

Related product manuals