EasyManua.ls Logo

GE 339 - Vfd

GE 339
342 pages
Print Icon
To Next Page IconTo Next Page
To Next Page IconTo Next Page
To Previous Page IconTo Previous Page
To Previous Page IconTo Previous Page
Loading...
6–32 339 MOTOR PROTECTION SYSTEM – INSTRUCTION MANUAL
S2 SYSTEM SETUP CHAPTER 6: SETPOINTS
VFD
Some Variable Frequency Drives (VFDs), such as pulse width modulated drives, can
generate significant distortion in voltage and introduce unwanted harmonics. However,
distortion due to these harmonics is not as significant in the current as it is in the voltage.
In many cases the functionality of various 339 protection elements can adapt to VFD
motor applications, depending on the system configuration.
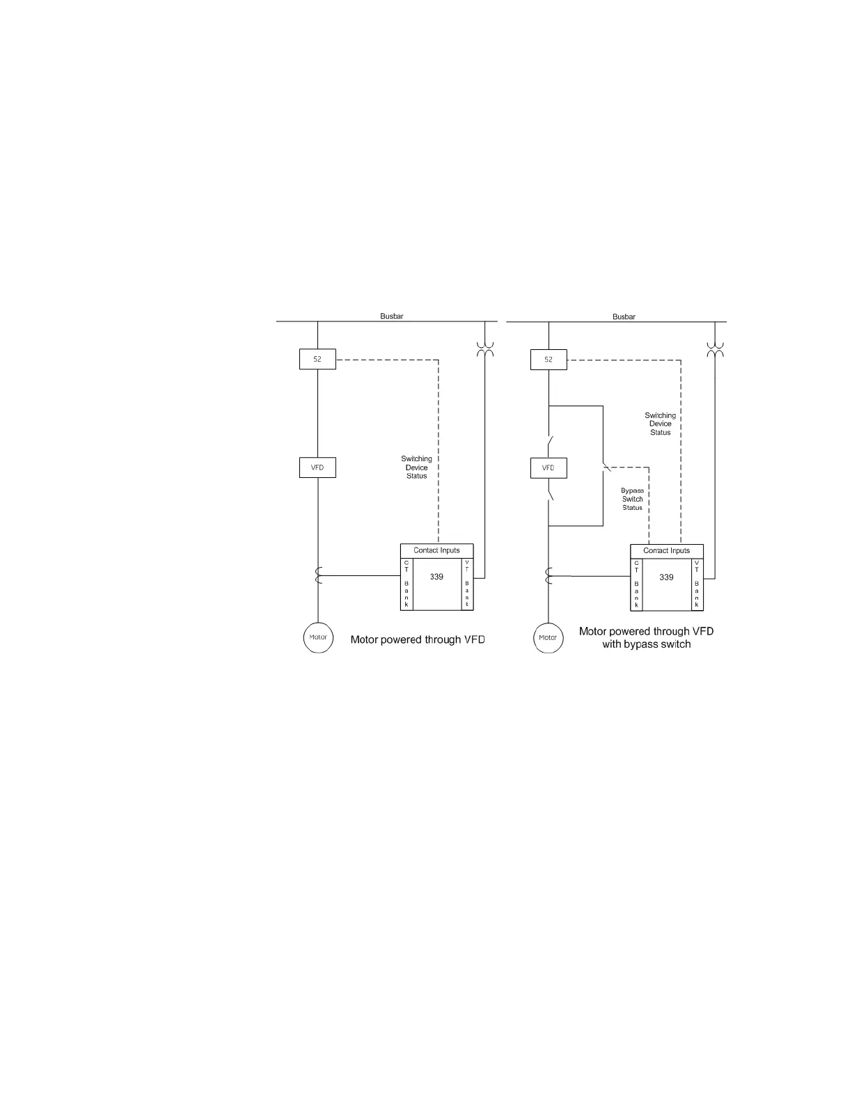
The following figure shows two typical VFD motor applications. Possible system
configurations are:
motor starts and runs through the VFD
motor starts through the VFD, but runs through the bypass switch
Figure 6-13: Typical VFD motor applications with and without a bypass switch
The VFD FUNCTION setting must be enabled in order to ensure proper performance of the
339 relay for motor applications with VFD. In motor applications where the VFD can be
bypassed, status of the bypass switch must be configured as a selected input under
setpoint BYPASS SWITCH.
If FUNCTION is "Enabled" and the "VFD Bypassed" operand is not asserted (i.e. BYPASS
SWITCH is "Open") then the 339 algorithms adopt the following changes:
The frequency source will be software calculated from the phase A current. For the
case where this current is not available or system frequency cannot be measured
from the AC signal, then the power system Nominal Frequency is used as a default. All
elements will function properly for frequency range of 40-70 Hz.
The frequency elements are inhibited from operating unless the phase A current is
above 10% of nominal. The voltage and power elements work properly if the voltage
waveform is approximately sinusoidal. An unfiltered voltage waveform from a pulse
width modulated drive cannot be measured accurately and it is advisable to block the
voltage elements in this case.
The VFD NOT BYPASSED operand is asserted, which could be used to generate a logic
element and block the voltage elements via Block setting of the elements.
The voltage and current angles are not measured accurately off the nominal
frequency. Thus neutral directional element is automatically blocked in VFD mode.
The current waveform is approximately sinusoidal and can be measured accurately.

Table of Contents

Related product manuals