EasyManua.ls Logo

GE 339 - Typical Wiring Diagrams

GE 339
342 pages
Print Icon
To Next Page IconTo Next Page
To Next Page IconTo Next Page
To Previous Page IconTo Previous Page
To Previous Page IconTo Previous Page
Loading...
2–12 339 MOTOR PROTECTION SYSTEM – INSTRUCTION MANUAL
ELECTRICAL INSTALLATION CHAPTER 2: INSTALLATION
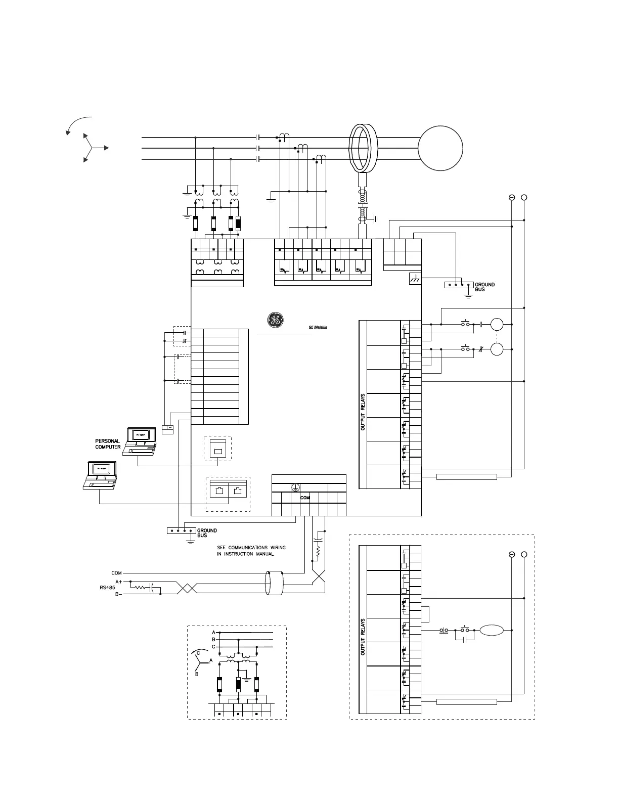
Typical Wiring Diagrams
Figure 2-14: Typical Wiring Diagram - Drawout - Input/Output Option “E”
896729A1.CDR
POWER SUPPLY
B1
A1
B2
+
-
chassis
gnd
C1
C2
C3
C4
C5
C6
C7
C8
C9
C10
DIGITAL INPUTS
52a
52b
INPUT 3
INPUT 4
INPUT 5
INPUT 6
INPUT 7
INPUT 8
ETHERNET
RJ45
MTRJ
10/100 BASE-T
100 BASE-FX
USB
TYPE B
A5
A6
A7
A2
A3
A4
A8
A9
A10
A11
A12
B3
B4
B5
B6
B7
B8
B9
B10
B11
B12
V
V
4 WIRE USB
4 WIRE ETHERNET
USB
+
F5 F4 F3
--
++
RS485
IRIG-B
F6F8
COMMUNICATIONS
CONTROL
POWER
A
B
C
E5
D5
E6
D6
E7
D7
E8
D8
1A/5A
VOLTAGE INPUTS
WYE VT
CONNECTION
E9
D9
E10
D10
E11
D11
V
A
V
A
V
B
V
B
V
C
V
C
7 CRITICAL
FAILURE
3 START
INHIBIT
4 AUXILIARY
5 AUXILIARY
6 AUXILIARY
2 CLOSE
1 TRIP
OPTIONAL
Front Panel
Rear Panel
339
Motor Protection System
52a
Breaker Aux Contacts
E12
D12
CURRENT INPUTS
1A/5A
1A/5A
1A/5A
COM COM COM
COM
COM
50:0.025
PHASE A PHASE B
PHASE C
GROUND
SENS GROUND
MOTOR
DC
+
SELF TEST ANNUNCIATOR
TRIP
COIL
CLOSE
COIL
BREAKER CONTROL CIRCUIT
A5
A6
A7
A2
A3
A4
A8
A9
A10
A11
A12
B3
B4
B5
B6
B7
B8
B9
B10
B11
B12
V
V
+
7 CRITICAL
FAILURE
3 START
INHIBIT
4 TRIP
5 AUXILIARY
6 AUXILIARY
2 NOT USED
1 NOT USED
SELF TEST ANNUNCIATOR
CONTACTOR
COIL
START
STOP
CC
STOP
START
52a
52b
CONTROL
POWER
H
L
A
B
C
C11
C12
COMMON
CHASSIS GND
INPUT 9
INPUT 10
CONTACTOR CONTROL CIRCUIT
F2 F1
-
+
RMIO
F7
52b
OPEN DELTA VT CONNECTION
E9 D9 E10D10E11D11
GND STUD

Table of Contents

Related product manuals