EasyManua.ls Logo

GE 339 - Page 45

GE 339
342 pages
Print Icon
To Next Page IconTo Next Page
To Next Page IconTo Next Page
To Previous Page IconTo Previous Page
To Previous Page IconTo Previous Page
Loading...
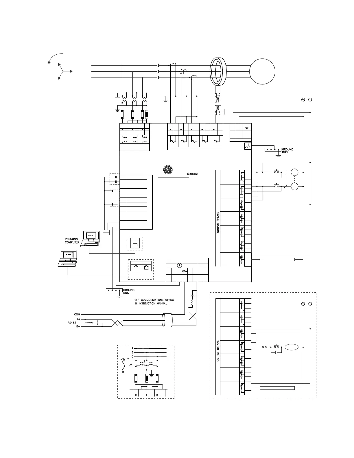
CHAPTER 2: INSTALLATION ELECTRICAL INSTALLATION
339 MOTOR PROTECTION SYSTEM – INSTRUCTION MANUAL 2–13
Figure 2-15: Typical Wiring Diagram - Non-drawout - Input/Output Option “E”
896704A1.CDR
POWER SUPPLY
L
N
+
-
chassis
gnd
B1
B2
B3
B4
B5
B6
B7
B8
B9
B10
DIGITAL INPUTS
52a
52b
INPUT 3
INPUT 4
INPUT 5
INPUT 6
INPUT 7
INPUT 8
ETHERNET
RJ45
MTRJ
10/100 BASE-T
100 BASE-FX
USB
TYPE B
A7
A9
A11
A1
A3
A5
A13
A15
A17
A19
A21
A2
A4
A6
A8
A10
A12
A14
A16
A18
A20
V
V
4 WIRE USB
4 WIRE ETHERNET
USB
+
C5 C4 C3
--
++
RS485
IRIG-B
C6C8
COMMUNICATIONS
CONTROL
POWER
A
B
C
E5
D5
E6
D6
E7
D7
E8
D8
1A/5A
VOLTAGE INPUTS
WYE VT
CONNECTION
E9
D9
E10
D10
E11
D11
V
A
V
A
V
B
V
B
V
C
V
C
7 CRITICAL
FAILURE
3 START
INHIBIT
4 AUXILIARY
5 AUXILIARY
6 AUXILIARY
2 CLOSE
1 TRIP
OPTIONAL
Front Panel
Rear Panel
339
Motor Protection System
52a
Breaker Aux Contacts
E12
D12
CURRENT INPUTS
1A/5A
1A/5A
1A/5A
COM COM COM
COM
COM
50:0.025
PHASE A PHASE B
PHASE C
GROUND
SENS GROUND
MOTOR
DC
+
SELF TEST ANNUNCIATOR
TRIP
COIL
CLOSE
COIL
BREAKER CONTROL CIRCUIT
A7
A9
A11
A1
A3
A5
A13
A15
A17
A19
A21
A2
A4
A6
A8
A10
A12
A14
A16
A18
A20
V
V
+
7 CRITICAL
FAILURE
3 START
INHIBIT
4 TRIP
5 AUXILIARY
6 AUXILIARY
2 NOT USED
1 NOT USED
SELF TEST ANNUNCIATOR
CONTACTOR
COIL
START
STOP
CC
STOP
START
52a
52b
CONTROL
POWER
H
L
A
B
C
B11
B12
COMMON
CHASSIS GND
INPUT 9
INPUT 10
CONTACTOR CONTROL CIRCUIT
C2 C1
-
+
RMIO
C7
52b
OPEN DELTA VT CONNECTION
E9 D9 E10D10E11D11
GND STUD

Table of Contents

Related product manuals