EasyManua.ls Logo

GE MS-6001B - Primary Flame Detector

GE MS-6001B
370 pages
Print Icon
To Next Page IconTo Next Page
To Next Page IconTo Next Page
To Previous Page IconTo Previous Page
To Previous Page IconTo Previous Page
Loading...
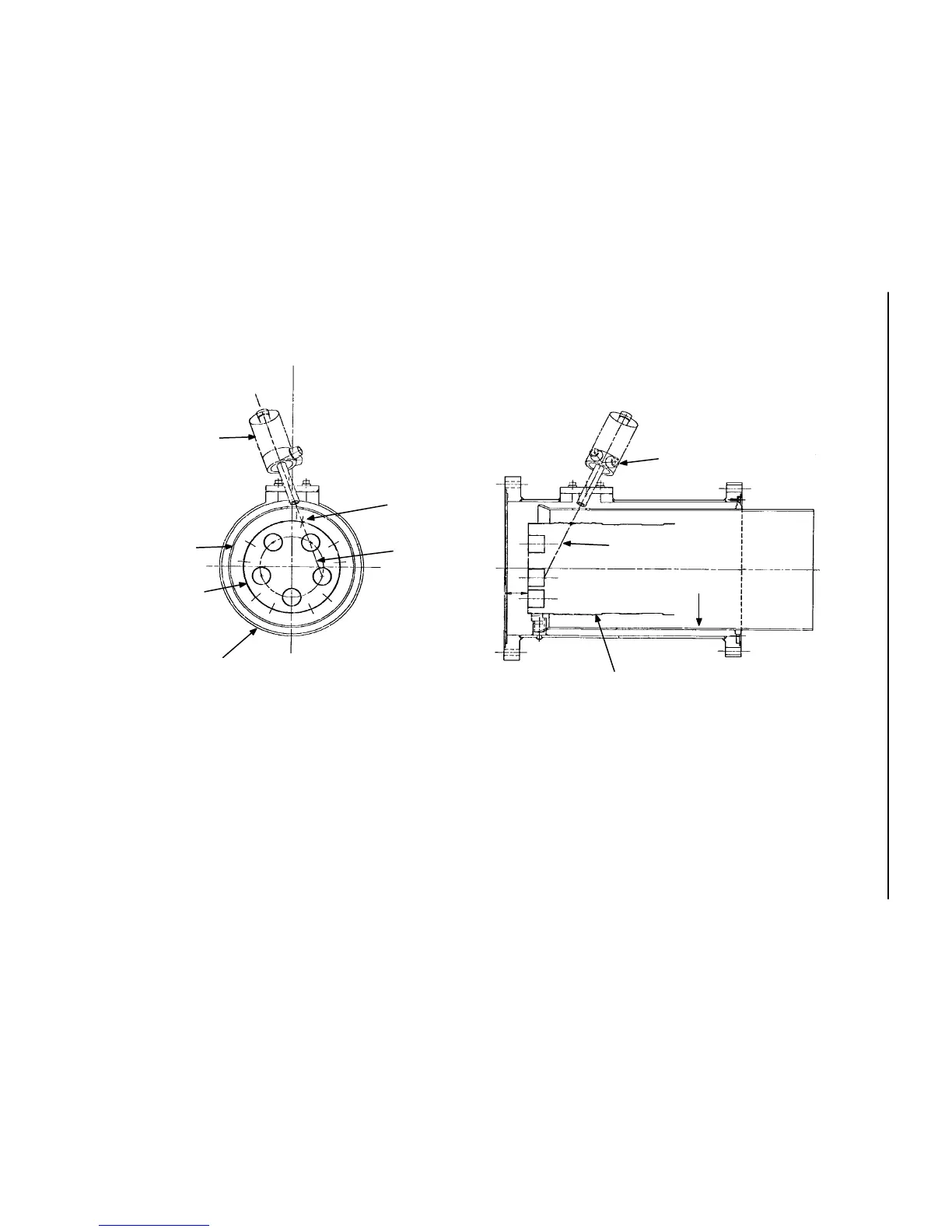
Inspection and Maintenance — GEK 107048Combustion Inspection — Reassembly Procedures
CI-R-18
Existing Liner
Mixing Holes (S)
Sight Line
Case Outer
Liner
Flow Sleeve
Flame Detector
Assy (Right Hand)
Liner
Flow Sleeve
Sight Line
Water Conns
(2) Ref.
Figure CI–R.15. Primary Flame Detector.

Table of Contents

Related product manuals