EasyManua.ls Logo

GE Multilin 850 - Page 507

GE Multilin 850
616 pages
Print Icon
To Next Page IconTo Next Page
To Next Page IconTo Next Page
To Previous Page IconTo Previous Page
To Previous Page IconTo Previous Page
Loading...
CHAPTER 4: SETPOINTS CONTROL
850 FEEDER PROTECTION SYSTEM – INSTRUCTION MANUAL 4–375
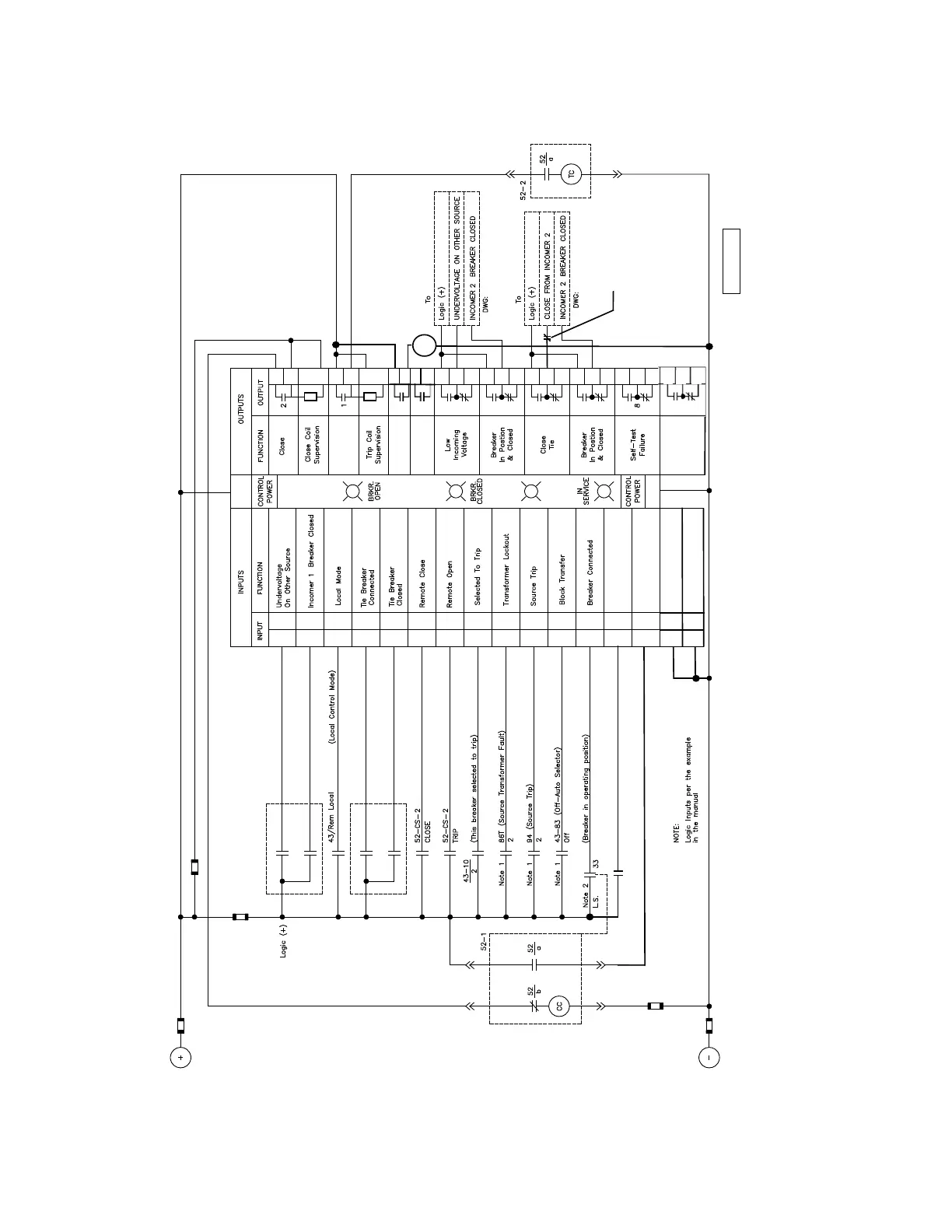
Figure 4-161: 850-For Incomer (2) Wiring Diagram
F19
CI7
Ci11
CI8
CI1
CI9
CI10
CI2
CI6
CI3
Ci12
Ci13
CI14
CI5
F20
G20
A2
A1
G13
F13
G14
G15
F14
F15
F18
G17
G18
G16
F17
G19
F5
F4
F6
F1
G1
F3
G2
51P/51N Trip
86-2
9
850-1
850-3
3
4
F8
F9
F7
F10
F12
F11
11
12
G9
G8
G7
G4
G5
Spare
10
G10
G11
G12
F24
F23
F22
Auto TRF
Ready
850-2
For Incomer (2)
DC Common for F Slot
52a Contact
Maintenance Switch
Breaker Closed
MS (Maintenance Switch)
F16
CI4
Note 1
850-1.DWG
850-3.DWG
Ground Connection:Terminal A3 and GND
STUD connect to switchgear ground bus
DC Common for G Slot
NOTES:
1) Optional.
2) Limit Switch (LS) or Truck Operated Contact (TOC) for drawout breakers. Used isolator switches closed (or jumper for non drawout breakers.
3) This 52/b auxiliary contact will be included if necessary. This is, when, due to breakers characteristics and performance, a race may occur
between tripping of the incomer breaker and closing of the tie breaker.
4) A maintenance switch (MS) may be incorporated into the scheme in which the switch is activated by switchgear door movement. The switch
input can be assigned to the Close Block setting.
52/b (52-2) Note 3
DC Negative
DC Positive
Trip
CONTACT
F9
F8
F12
F11
850-1
CO3
CO4
DWG: 850-1.DWG
F9
F8
F12
F11
850-3
CO3
CO4
DWG: 850-3.DWG
Note 1
2
Output contacts shown with
no control power
CONTACT
F2
892819A2.cdr
V
V
TRANSFER
READY
G24
G23
G22
16

Table of Contents

Related product manuals