EasyManua.ls Logo

Global 5120 - 2.5 Start Up

Global 5120
79 pages
Print Icon
To Next Page IconTo Next Page
To Next Page IconTo Next Page
To Previous Page IconTo Previous Page
To Previous Page IconTo Previous Page
Loading...
GlobalPowerTechnologies 2-4
5120
Afuelshut-o󰀨valveMUSTbeinstalledbetweentheTEGandthefuelsupply.Allfuelpiping
mustbeinaccordancewithlocalregulations.
1) Inspectthefuellinesandttingstobesuretheyarefreeofforeignmaterial.
2) Purgefuellinesofallair.
TheTEGhasa1/4in.NPT,malefuelinlet.Removetheplasticprotectivecapandapplythread
sealant,seeFigure3.Connectthefuellineandtestalljointsforleaksusingacommercialleak
detector.
2.5 Start Up
SystemPerformanceLogsarelocatedatthebackofthismanual,Appendix7.5,page7-5.Use
oftheselogsisrecommended each time the site is visited. This information is valuable for
futurereference.
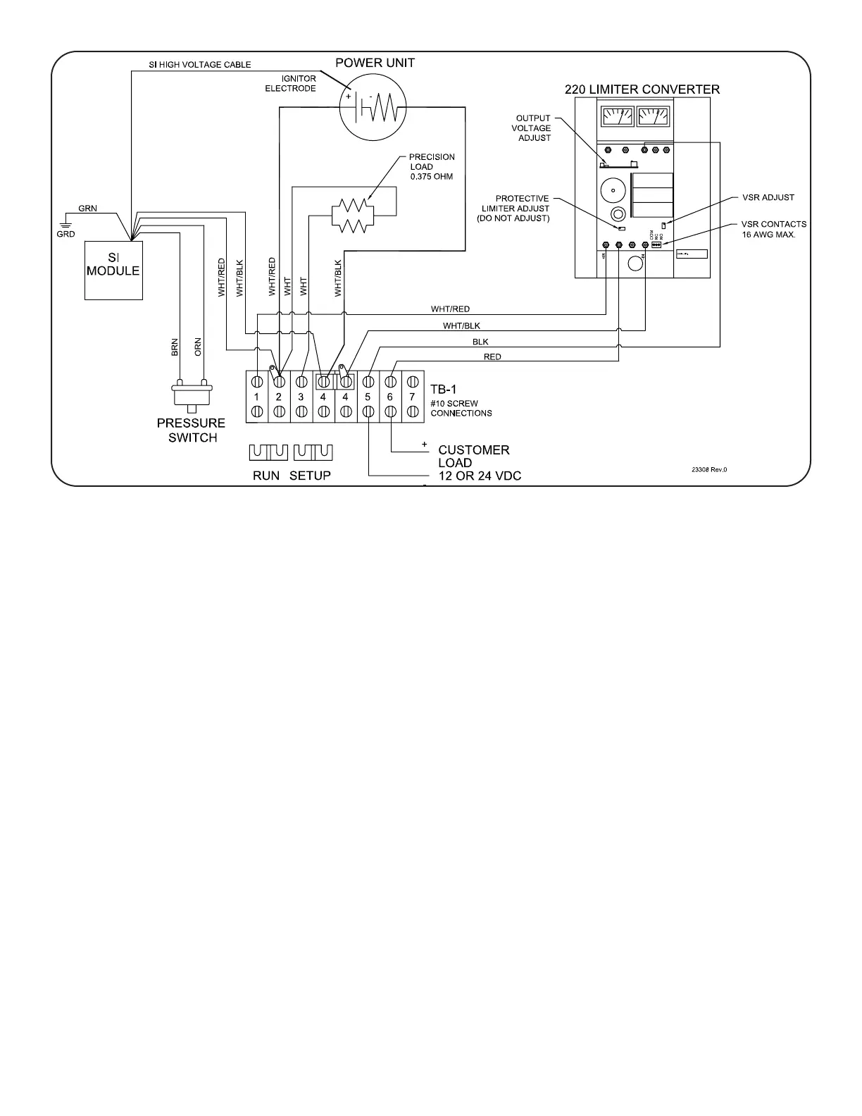
1) MovethejumperonTB-1frombetweenterminals1and2tobetweenterminals3and
4,seeFigure4orFigure5..
2) ConnectaDCVoltmetertoterminals2(+)and4(-)ofTB-1.ThiswillbemeasuringV
set
.
3) Makesurethatalloftheconnectionsinthefuelsystemaretightandhavebeenchecked
forleaks.
Checktheignitionsystem,seeFigure6.
1) Loosentheignitorrodwing-nut.
Figure 4WiringDiagram5120TEGwithLimiterConverter

Table of Contents

Related product manuals