EasyManua.ls Logo

Global 5120 - Physical Dimensions

Global 5120
79 pages
Print Icon
To Next Page IconTo Next Page
To Next Page IconTo Next Page
To Previous Page IconTo Previous Page
To Previous Page IconTo Previous Page
Loading...
GlobalPowerTechnologies 7-2
5120
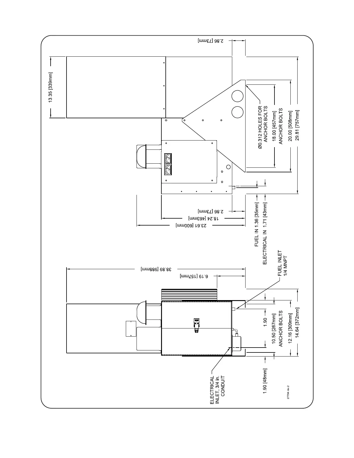
7.2 Physical Dimensions
Figure 42 PhysicalDescription

Table of Contents

Related product manuals