EasyManua.ls Logo

Immergas VICTRIX PRO V2 - 7.1 Replacing Victrix Pro 35-55 2 ERP and Victrix Pro 35-55 1 E with Victrix Pro V2 35-55 EU; 7.2 Replacing Victrix 50 with Victrix Pro V2 55 EU

Immergas VICTRIX PRO V2
60 pages
Print Icon
To Next Page IconTo Next Page
To Next Page IconTo Next Page
To Previous Page IconTo Previous Page
To Previous Page IconTo Previous Page
Loading...
1 2
3
2
170170
170
170
800
800
140
220
300
300
52
69
1 2
3
2
4
800
238238170170
232
220
140
300
390
800
79
22
41
42
56
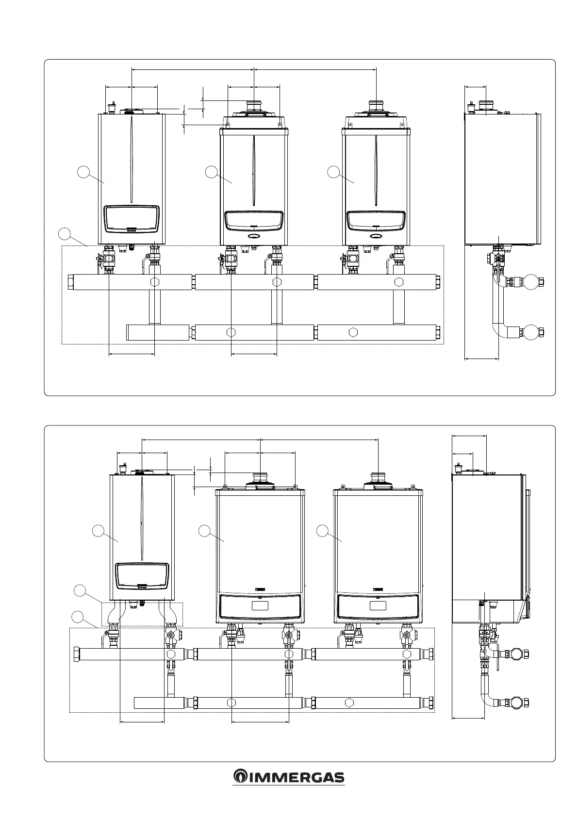
Key:
1 - Victrix Pro V2 35-55 EU
2 - Victrix Pro 35-55 2 ERP and Victrix Pro 35-55 1 E
3 - Battery hydraulic manifold kit
7.2 REPLACING VICTRIX 50 WITH VICTRIX PRO V2 55 EU
Key:
1 - Victrix Pro V2 55 EU
2 - Victrix 50
3 - Victrix Pro Adapter Kit
4 - Battery hydraulic manifold kit
7.1 REPLACING VICTRIX PRO 3555 2 ERP AND VICTRIX PRO 3555 1 E WITH VICTRIX PRO V2 3555 EU

Table of Contents

Other manuals for Immergas VICTRIX PRO V2

Related product manuals