EasyManua.ls Logo

Immergas VICTRIX PRO V2 - 5.17 Wiring diagram direct heating zone and DHW pump - parallel operation

Immergas VICTRIX PRO V2
60 pages
Print Icon
To Next Page IconTo Next Page
To Next Page IconTo Next Page
To Previous Page IconTo Previous Page
To Previous Page IconTo Previous Page
Loading...
1
2 2
3
4
5
31
44
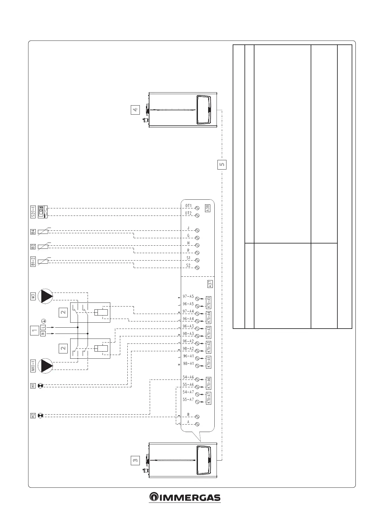
5.17 WIRING DIAGRAM DIRECT HEATING ZONE AND DHW PUMP  PARALLEL OPERATION
Key:
A37 - Connection sheet (loads)
A38 - Connection card (signals)
B1-2 - System ow probe (NTC) (optional)
B2 - Domestic hot water probe (NTC) (optional)
B4 - External probe (NTC) (optional)
H1 - “ERROR" warning light (230 Vac) (optional)
H2 - “Burner on” indicator light (230 Vac) (optional)
M3 - DHW pump (optional)
M10-1 - Zone 1 circulator pump (optional)
S20-1 - Zone 1 room thermostat (optional)
1 - 230 Vac - 50 Hz
2 - External relay (optional) - Coil 230 Vac Max. 0.1 A
3 - Master appliance
4 - Slave appliance (last boiler)
5 - Simple cascade appliance communication BUS
(make connections as per specic diagram)
“HYDRAULIC SETTINGS” PARAMETER CONFIGURATION TABLE ('TECHNICIAN' MENU)
Parameter/menu name Setting
“Relay settings” submenu:
- K70-A1
- K70-A2
- K70-A3
- K70-A4
- K70-A5
- K70-A6
- K70-A7
System pump conguration
- Relay not used
- Error
- Zone 1 pump
- Domestic hot water pump:
- Relay not used
- Burner on
- Relay not used
- not used
- System sensor
- Type of heating request
- DHW request type
- Parallel mode
- Heating + domestic hot water mode
- Outdoor temperature curve and room thermostat
- Sensor
- Enabled
With parallel mode enabled, the appliance uses the DHW setpoint and the maximum power used is the greater of the DHW and CH setpoint.
Openerm:
If an Openerm thermostat is used, set the parameter 'Heating
request type' as 'Room thermostat setpoint';
Make sure that the Openerm thermostat is compatible with
the appliance.
Notes:
See further tables and notes pertaining to this scheme in section
5.10, "Tables and notes common to simple cascade wiring diagrams".

Table of Contents

Other manuals for Immergas VICTRIX PRO V2

Related product manuals