EasyManua.ls Logo

Jumbo PH Series - Navodila Za Namestitev; KU. Mesto Postavitve

Jumbo PH Series
Print Icon
To Next Page IconTo Next Page
To Next Page IconTo Next Page
To Previous Page IconTo Previous Page
To Previous Page IconTo Previous Page
Loading...
1
利用 pdfFactory 测试版本创建的PDF文档 www.pdffactory.com
NAVODILA ZA UPRAVLJANJE
NAVODILA ZA NAMESTITEV (opcijsko)
Dodatne funkcije
Samodejni ponovni zagon
Če se naprava zaradi izpada električnega toka
zadnjo izbrano funkcijo, ko je električni tok zopet na
voljo.
Pred ponovnim zagonom počakajte tri
minute Če je bila naprava izklopljena, jo lahko znova
vklopite šele po treh minutah. Razlog je v zaščiti enote.
Obratovanje se samodejno vzpostavi po treh minutah.
Funkcija ENERGETSKE
UČINKOVITOSTI
nastavljene
ventilatorja se ustavita. Če je temperatura
funkcijo za energetsko učinkovitost.
al
i
Vodoravno oko
Komplet okenskega vstavka
Najmanj: 67,5
cm (2,22
č
evljev).
Najve
č
: 123
cm (4,04
č
evljev).
Slika 5
NAVODILA ZA NAMESTITEV
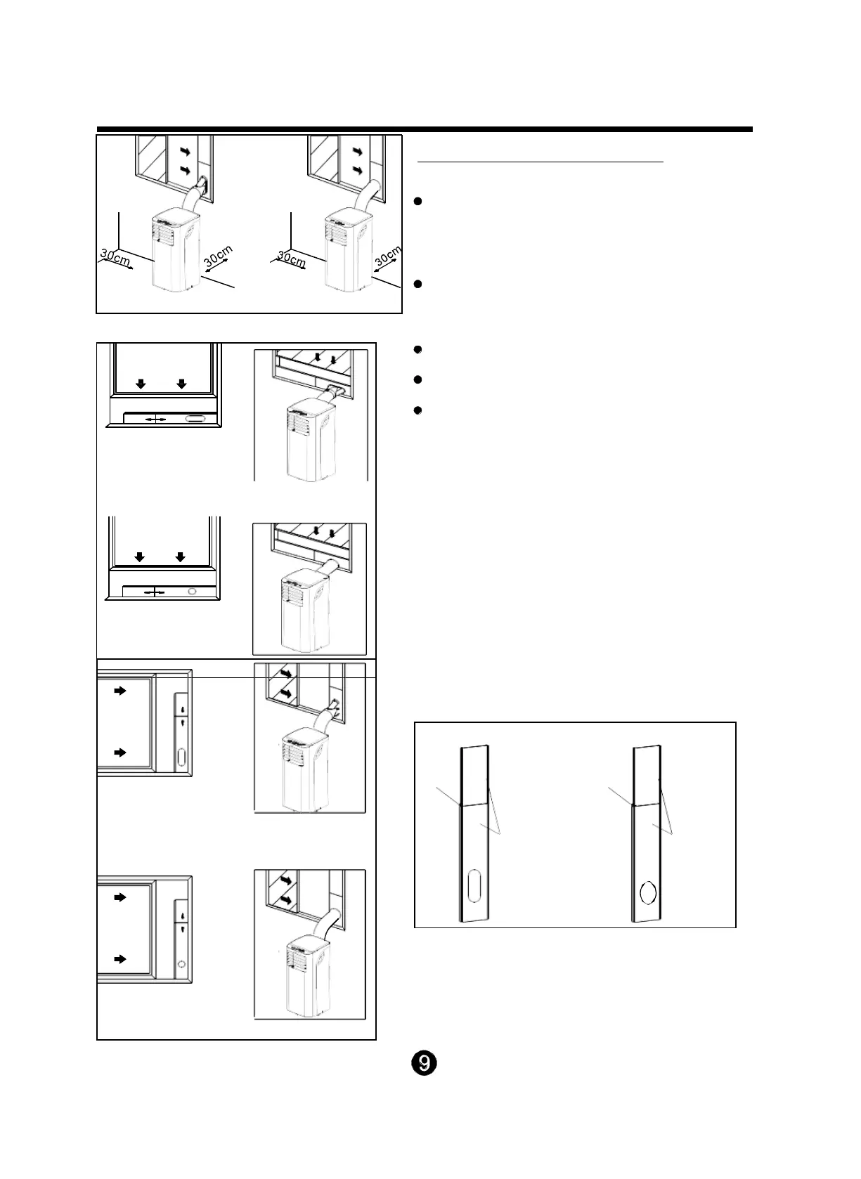
Mesto postavitve
Za preprečevanje tresljajev in hrupa klimatsko
napravo postavite na trdno podlago. Za varno in
stabilno namestitev postavite napravo na gladko in
ravno podlago z zadostno nosilnostjo.
Naprava ima zaradi lažjega nameščanja koleščke, ki
pa so predvideni samo za premikanje po gladkih,
ravnih površinah. Bodite previdni pri vožnji naprave
po preprogi. Z napravo ne poskušajte prevoziti drugih
predmetov.
Napravo postavite v bližino ustrezno ozemljene
vtičnice.
Odstranite vse ovire, ki so v bližini zračnega
dovoda in odvoda.
Za učinkovito hlajenje naj bo naprava najmanj
30 cm oddaljena od stene.
prilagodite
ro
č
no
prilagodite
ro
č
no
Kompresor in (ali) motor ventilatorja se
izklopita.
Nastavitev smeri zračnega toka
Smer zračnega toka nastavite ročno (slika
4):
Rešeto lahko ročno premaknete v želeni
položaj.
Na prezračevalno rešeto ne postavljajte težkih
predmetov ali drugih bremen, ker lahko
nastane škoda na napravi.
Pazite na to, da bo med ogrevanjem
prezračevalno rešeto do konca odprto.
Med delovanjem naprave naj bo
prezračevalno rešeto v celoti odprto.
ali
Vodoravno oko
Komplet okenskega vstavka
Najmanj: 67,5
cm
(2,22
č
evljev). Najve
č
: 123
cm
(4,04
č
evljev).
Slika 6
Namestitev kompleta okenskega
vstavka
Komplet okenskega vstavka je zasnovan tako, da se
prilega večini običajnih »navpičnih« in »vodoravnih«
oken. Kljub temu bo pri montaži določene zadeve morda
treba improvizirati oz. prilagoditi tipu okna. Upoštevajte
minimalne in maksimalne okenske odprtine, navedene na
slikah 6 in 7. Komplet okenskega vstavka je mogoče
pritrditi z enim vijakom (glejte sliko 7a).
Napotek:
Če je okenska odprtina manjša od omenjene
minimalne dolžine okenskega vstavka, skrajšajte del
kompleta, ki ima luknjo, tako da se bo prilegal okenski
odprtini. Luknje nikoli ne izrezujte iz kompleta.
Slika 4
Vodoravno
okno
Komplet okenskega vstavka
Najmanj: 67,5
cm
(2,22
č
evljev). Najve
č
: 123
cm
(4,04
č
evljev).
ali
Vijak
ali
Komplet
okenskega
vstavka
Vija
k
Komplet
oken.
vstavka
Slika 7a
Vodoravno
oko
Komplet okenskega vstavka
Najmanj: 67,5
cm
(2,22
č
evljev). Najve
č
: 123
cm
(4,04
č
evljev).
Slika 7

Table of Contents

Related product manuals