EasyManua.ls Logo

Keyscan CA250B - Figure 88 - Accessibility HC Output Relay CA4500 B;OCB-8 Connections

Default Icon
140 pages
Print Icon
To Next Page IconTo Next Page
To Next Page IconTo Next Page
To Previous Page IconTo Previous Page
To Previous Page IconTo Previous Page
Loading...
Keyscan Inc. Technical Guide (PC109x - 04.15)
127
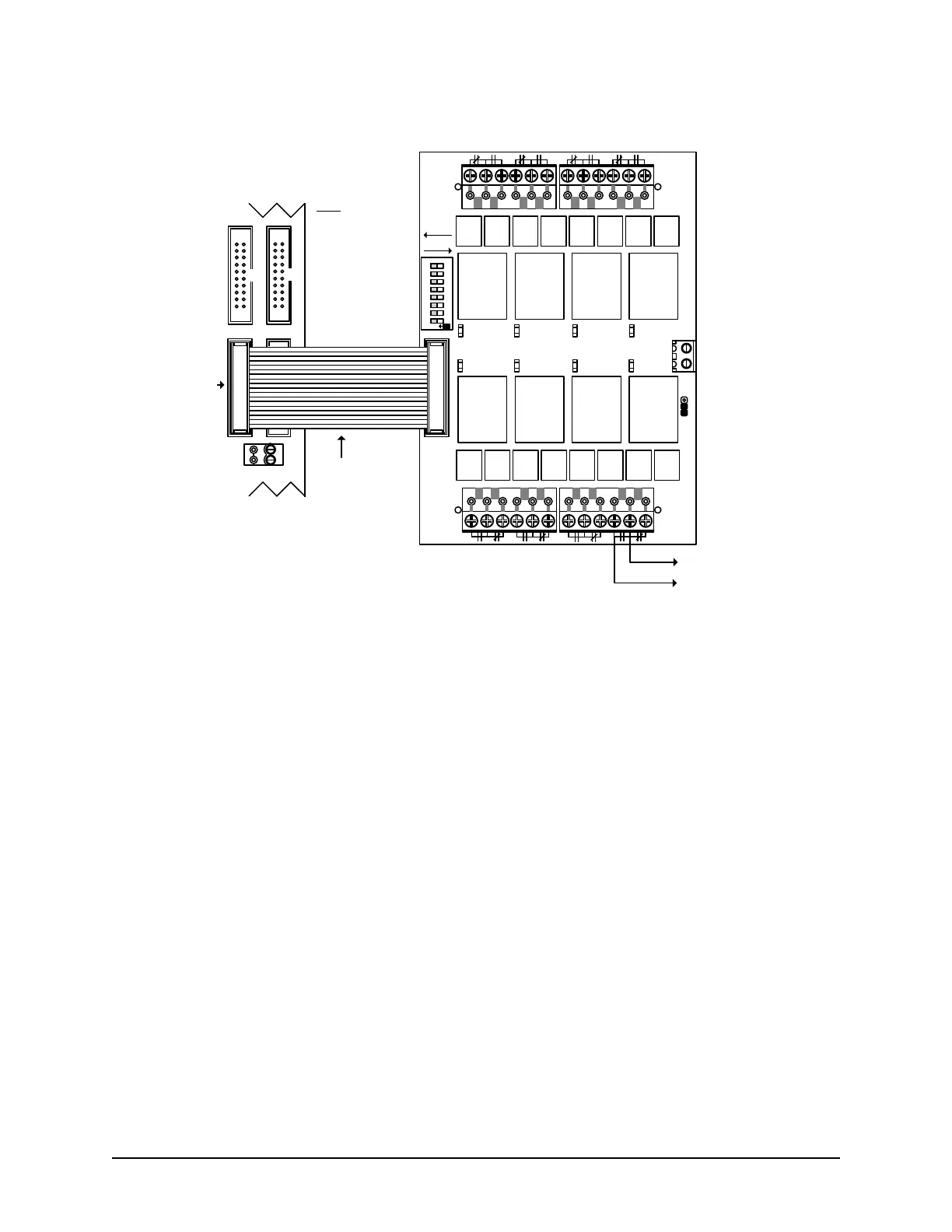
Figure 88 Accessibility HC Output Relay CA4500B/OCB-8 Connections
CA4500B
Control Board
Cut View
OCB-8 ribbon cable
connects to
CONTROL 4.
red stripe
OCB-8
to
door
accessability
operator
OCB-8 powered
through ribbon
cable with J1
Relay Power set
on ACU.
CONTROL
4
KI-00228E-10-14
CONTROL
2
CONTROL
5
TAMPER TB3
SWITCH
+
-
S1
TB1
J1
OUTPUT
CONTROL
BOARD
K1
K2
K3 K4
K5K6K7K8
LE D ON =
RELAY
ENERGIZED
O
N
1 2 3 4 5 6 7 8
ACU
EXT
12V
GND
H1
TB2
TB3
TB4
OCB8
PC1102
RELAY
REV.
NORMAL
KEYSCAN
INC.
HC
Output
1
(DIP
Switch 1)
HC
Output
2
(DIP
Switch 2)
HC
Output
3
(DIP
Switch 3)
HC
Output
4
(DIP
Switch 4)
Not
Used
Relay
Power
Not
Used
Not
Used
Not
Used
Note
DIP switches set
relays for normal or
reverse, as
indicated by the
arrows.

Table of Contents