EasyManua.ls Logo

Lenovo ThinkSystem SR645 - Inch;3.5-Inch Drive Backplane (Power)

Lenovo ThinkSystem SR645
284 pages
To Next Page IconTo Next Page
To Next Page IconTo Next Page
To Previous Page IconTo Previous Page
To Previous Page IconTo Previous Page
Loading...
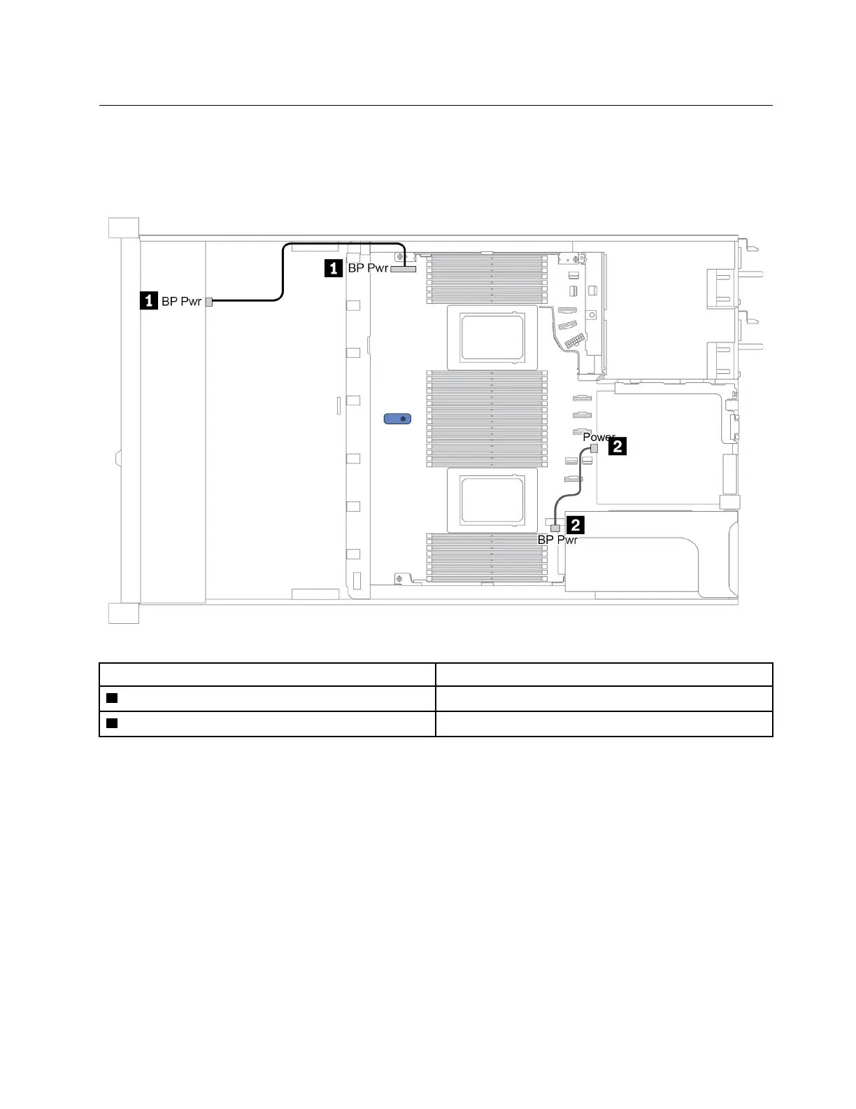
2.5-inch/3.5-inch drive backplane (power)
Use the section to understand the power cable routing for 2.5-inch or 3.5-inch drive backplanes.
Power cable routing for 2.5-inch or 3.5-inch drive backplanes
From To
1 Power connector on the front drive backplane BP power connector on the system board
2 Power connector on the rear drive backplane Power connector on riser card on riser 1 assembly
Chapter 3. Internal cable routing 65

Table of Contents

Other manuals for Lenovo ThinkSystem SR645

Related product manuals