EasyManua.ls Logo

Lenze 9325 - Page 3

Lenze 9325
524 pages
Print Icon
To Next Page IconTo Next Page
To Next Page IconTo Next Page
To Previous Page IconTo Previous Page
To Previous Page IconTo Previous Page
Loading...
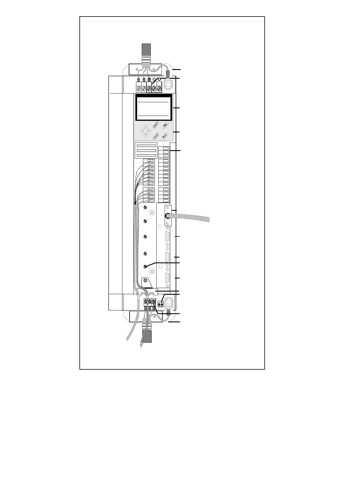
UVW
U
VW
PE
Mains connection
and DC connection
Detachable operating module
alternatively
Field busses
INTERBUS
System bus (CAN)
Control terminals
Digital frequency input
Encoder input
Resolver input
Digital frequency output
Motor connection
RDY IMP Imax Mmax Fail
1
2
7
62
3
47
63
A4
ST2
59
ST1 A3 A2 A1
E3
E5
39 E4 E2 E1 28
GND
LO HI
MCTRL - N - ACT
X4
X5
X6
X8
X9
PE
L1 L2 L3
-UG
X10
T1 T2
1
5
5
1
5
1
1
5
Screen connection
1250 rpm
X7
Screen plate motor cables
Screen plate control connections
Screen plate mains connection
+UG
PTC connection
X3
X1
K35.0002
X1 (hidden):
Automation interface
Show/Hide Bookmarks

Table of Contents

Related product manuals