EasyManua.ls Logo

Maxon BMR Series - Run Power Down Hydraulic Lines

Maxon BMR Series
106 pages
To Next Page IconTo Next Page
To Next Page IconTo Next Page
To Previous Page IconTo Previous Page
To Previous Page IconTo Previous Page
Loading...
51
11921 Slauson Ave. Santa Fe Springs, CA. 90670 (800) 227-4116 FAX (888) 771-7713
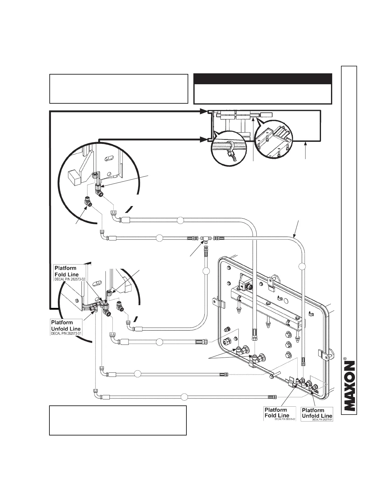
RUN POWER DOWN HYDRAULIC LINES
FIG. 51-1
NOTE: See TABLES 52-1 & 52-2 for
information on the numbered
hoses in this illustration.
STEP 8 - RUN HYDRAULIC LINES & ELECTRIC CABLES
- Continued
Before connecting hoses, ensure face
seal o-rings are in place.
CAUTION
TEE
1
3
4
2
1
LIFTING
LINE
RETURN
LINE
RETURN
LINE
2
LIFTING
LINE
LIFTING
LINE
RETURN LINE
(TO PUMP RESERVOIR)
NOTE: Lifting & folding hoses run up
from column connectors, as
shown, to bottom of vehicle oor.
LH COLUMN
RH COLUMN
VEHICLE
(BOTTOM VIEW)
CHANNEL
GUARD
RH
LH
1

Table of Contents

Related product manuals