EasyManua.ls Logo

Maxon BMR Series - Step 9: Ground Pump to Vehicle Frame

Maxon BMR Series
106 pages
To Next Page IconTo Next Page
To Next Page IconTo Next Page
To Previous Page IconTo Previous Page
To Previous Page IconTo Previous Page
Loading...
58
11921 Slauson Ave. Santa Fe Springs, CA. 90670 (800) 227-4116 FAX (888) 771-7713
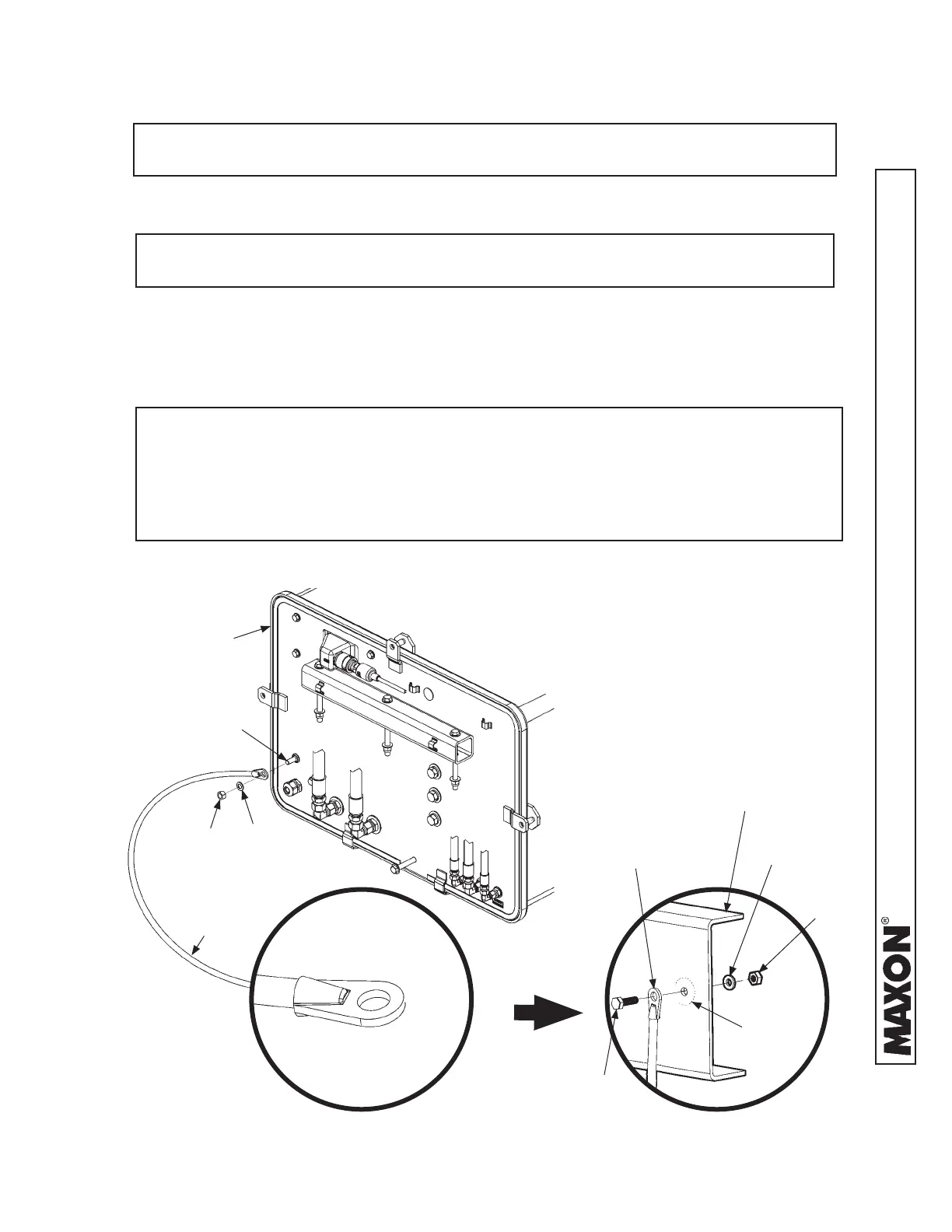
STEP 9 - GROUND PUMP TO VEHICLE FRAME
FIG. 58-1
GROUND
CABLE
PUMP
BOX
FIG. 58-1A
GROUND
STUD
NOTE: Make sure the Liftgate power unit, all batteries on the vehicle for power
unit, and taillights on Liftgate are connected correctly to a common ground.
2. Extend the ground cable to reach vehicle frame (FIG. 58-1B) without putting ten-
sion on cable (after connection). Connect to an existing grounding point if available.
4. Bolt ground cable terminal lug (FIG. 58-1A) to vehicle frame as shown in FIG. 58-1B.
3. If necessary, drill a 11/32” (0.343”) hole in vehicle frame for bolting the ground
cable terminal lug (FIG. 58-1B).
NUT
FIG. 58-1B
TERMINAL LUG
(GROUND CABLE)
5/16” FLAT
WASHER
VEHICLE CHASSIS
(TRUCK FRAME SHOWN)
5/16"-18 X 1" LG.
CAP SCREW
BARE
METAL
1. Bolt ground cable to the ground stud on pump box (FIG. 58-1).
NOTE: If there is an existing grounding point on truck frame, use it to connect
ground cable and skip the step for drilling a hole.
LOCK
NUT
FLAT
WASHER
NOTE: • Before connecting ground cable to frame, clean connection point on the
frame down to bare metal.
After connecting ground cable, MAXON recommends sealing the ground
connection with galvanized coating for galvanized surfaces, or black paint
for painted surfaces.

Table of Contents

Related product manuals