EasyManua.ls Logo

Mitsubishi Lancer Evolution-IV - Page 378

Mitsubishi Lancer Evolution-IV
391 pages
Print Icon
To Next Page IconTo Next Page
To Next Page IconTo Next Page
To Previous Page IconTo Previous Page
To Previous Page IconTo Previous Page
Loading...
CHASSIS ELECTRICAL Headlamp
54-38
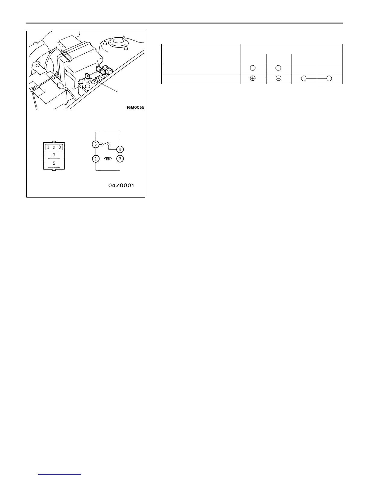
HEADLAMP RELAY CONTINUITYCHECK
Battery voltage Terminal No.
1 3 4 5
Not supplied
Supplied
Headlamp relay

Table of Contents

Related product manuals