EasyManua.ls Logo

MP Systems R Series - Page 16

MP Systems R Series
81 pages
Print Icon
To Next Page IconTo Next Page
To Next Page IconTo Next Page
To Previous Page IconTo Previous Page
To Previous Page IconTo Previous Page
Loading...
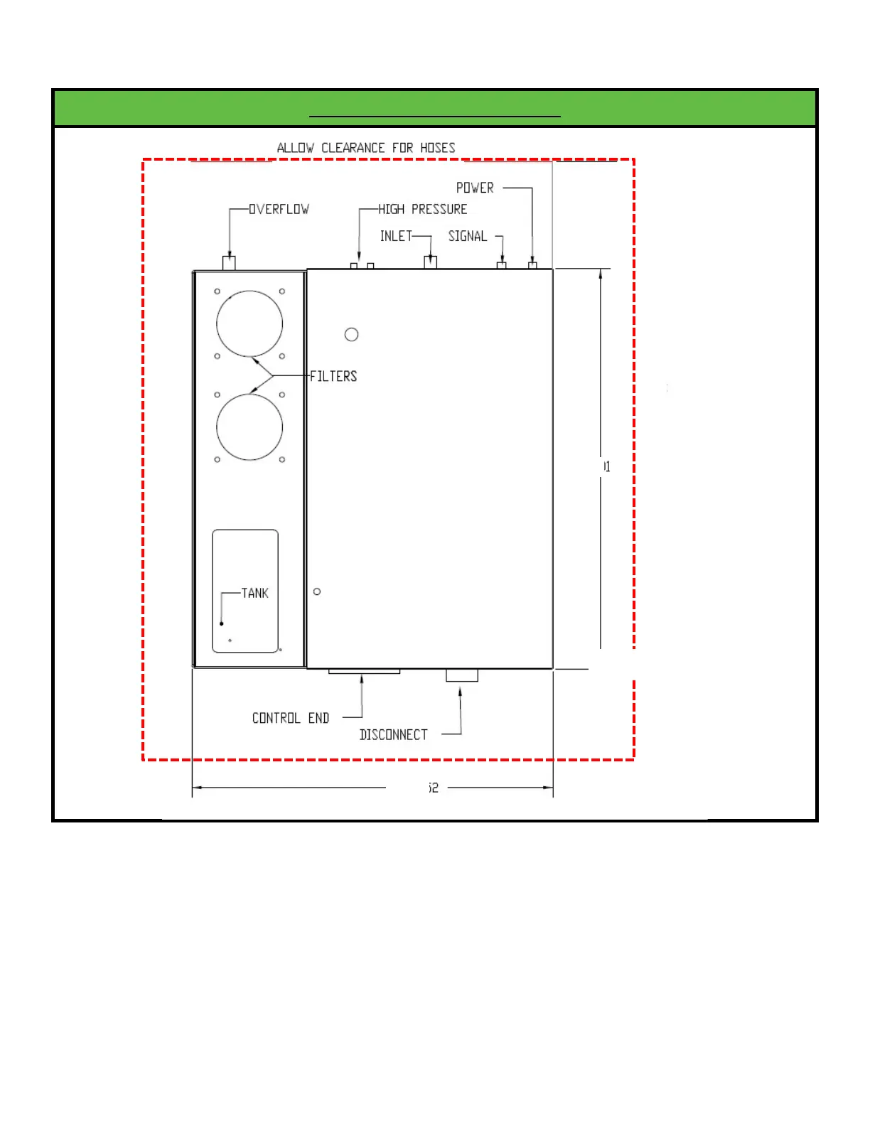
10 MPSYSTEMS-M-001/06
RF16 / RT / VR16 / VRT SERIES
15” 24”
38”
42”

Table of Contents

Related product manuals