EasyManua.ls Logo

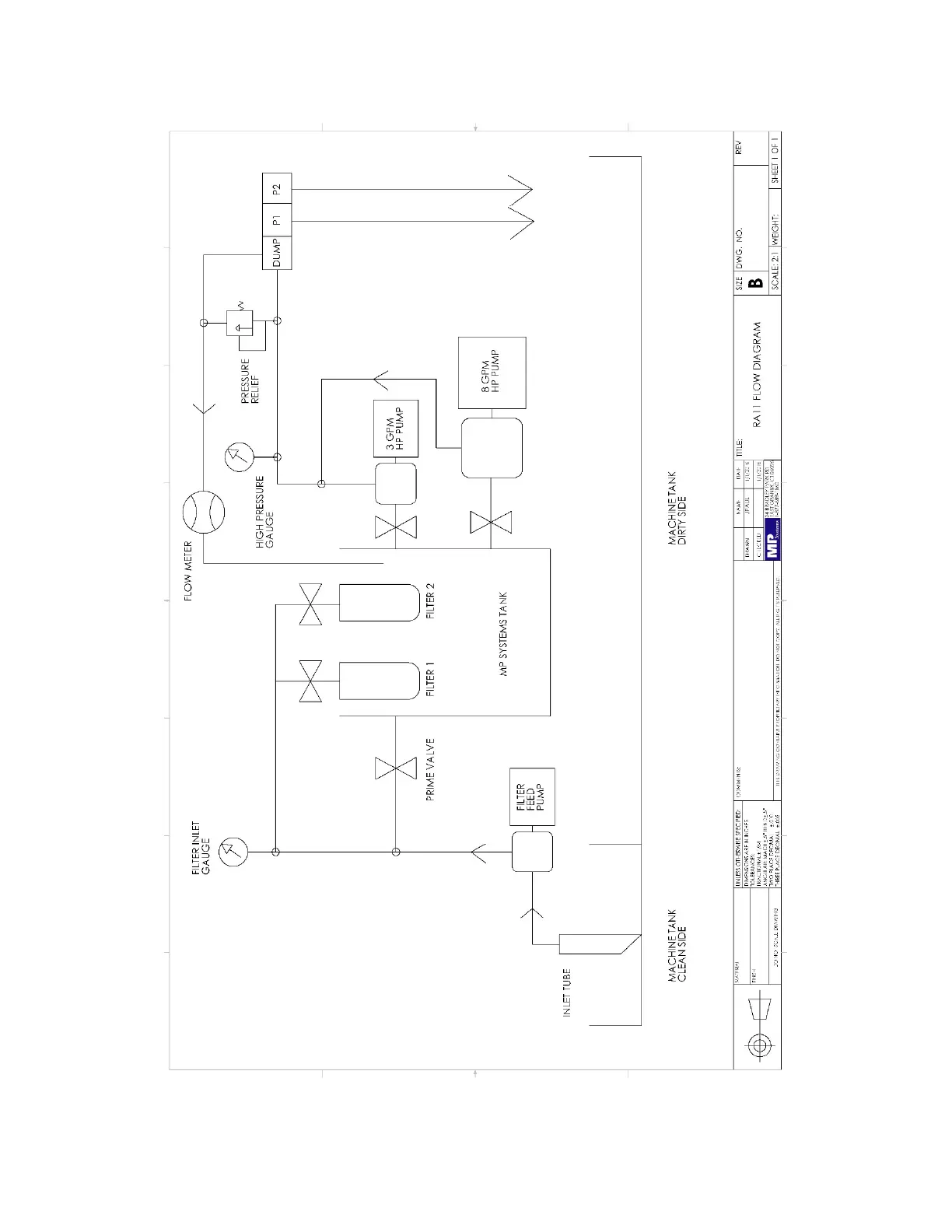
MP Systems R Series - RA11 Series Flow Diagram

MP Systems R Series
81 pages
Print Icon
To Next Page IconTo Next Page
To Next Page IconTo Next Page
To Previous Page IconTo Previous Page
To Previous Page IconTo Previous Page
Loading...
73 MPSYSTEMS-M-001/06
RA11 Series Flow Diagram

Table of Contents

Related product manuals