EasyManua.ls Logo

Nailor 35SW - Page 16

Default Icon
144 pages
Print Icon
To Next Page IconTo Next Page
To Next Page IconTo Next Page
To Previous Page IconTo Previous Page
To Previous Page IconTo Previous Page
Loading...
Nailor Industries Inc. reserves the right to change any information concerning product or pricing without notice.
SCHEDULE TYPE:
PROJECT:
ENGINEER:
CONTRACTOR:
DATE B SERIES SUPERSEDES DRAWING NO.
2 - 6 - 23 3500 6 - 6 - 22 35SST-2
Page 2 of 2.
Dimensions are in inches (mm).
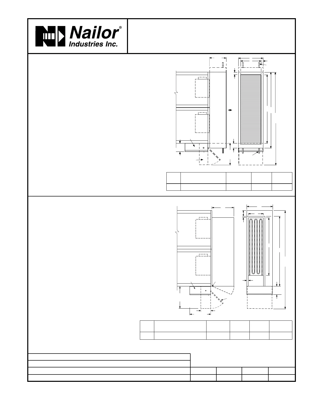
FAN POWERED TERMINAL UNIT WITH
EPIC ECM MOTOR • HEAT ACCESSORIES
STEALTH • SERIES FLOW
CONSTANT OR VARIABLE VOLUME
MODELS: 35SWST AND 35SEST • UNIT SIZE 7
Standard Features:
Coil section installed on unit discharge.
Coil (and header on multi-circuit units) is installed in insulated
casing for increased thermal efficiency.
1/2" (13) copper tubes.
Aluminum ripple fins.
Sweat connections: 1 and 2 row, 7/8" (22) O.D. male solder.
3 row 1 3/8" (35) O.D. male solder.
Top and bottom access panels for inspection and coil cleaning.
Flanged outlet duct connection.
Coil Rows:
q
1-Row q 2-Row q 3-Row
Coil Hand Connections:
(Looking in direction of airflow).
Standard Line Voltage Enclosure:
q Right hand (illustrated). Standard.
q Left hand. Optional.
With 90° Line Voltage Enclosure (FN2 option):
Connections must be selected opposite hand to FN2 controls
enclosure location.
q Left hand (illustrated with dotted line). Standard.
q Right hand (terminals are inverted). Optional.
Standard Features:
Unique hinged heater design permits easy access, removal and
replacement of heater element without disturbing ductwork.
Coil installed on unit discharge.
Insulated coil element wrapper.
Automatic reset high limit cut-outs (one per element).
Single point electrical connection (except 600V).
Positive pressure airflow switch.
Flanged outlet duct connection.
Class A 80/20 Ni/Cr wire.
Terminal unit with coil is ETL Listed as an assembly.
Controls mounted as standard on RH side as shown. Terminals
ordered with LH controls (optional) are inverted and discharge
duct hanging elevation will therefore change.
Voltage:
Single phase, 60 Hz.
q 208V q 240V q 277V
Three phase, 60 Hz.
q 208V q 480V (4 wire wye).
q 600V (dual point connection). q _______________ .
Options:
q
Toggle disconnect switch (includes fan).
q SCR control.
q Door interlock disconnect switch.
q Mercury contactors.
q Power circuit fusing.
q Dust tight construction.
q Manual reset secondary thermal cut out.
Unit
Size
Outlet Duct Size
C x D
E H J
7
50 x 14 7/8 (1270 x 378) 55 3/8 (1407) 18 (457) 1 9/16 (40)
Unit
Size
Outlet Duct Size
F x G
K H M N
7
40 1/4 x 11 3/4 (1022 x 298) 48 (1219) 18 (457) 4 (102) 15 1/4 (387)
12"
(305)
3 9/16"
(90)
D
H
E
C
1 13/16"
(46)
J
FAN
FAN
COIL
CONNECTIONS
15"
(381)
67"
(1702)
HINGED FAN
CONTROLS
ENCLOSURE
OPTIONAL 90° FN2
CONTROLS ENCLOSURE
5 3/4"
(146)
COIL CONNECTIONS
WITH FN2 OPTION
N
5 3/4"
(146)
G
K
F
1"
(25)
M
1"
(25)
FAN
FAN
HINGED FOR
ELEMENT
REMOVAL
6 3/4"
(171)
15"
(381)
H
OPTIONAL
90° FN2
CONTROLS
ENCLOSURE
14" (356)
HINGED
ELECTRIC
COIL
AND FAN
CONTROLS
ENCLOSURE
HEATER
67"
(1702)
q Hot Water Coil Section Model 35SWST STEALTH
q Electric Coil Section Model 35SEST STEALTH

Table of Contents