EasyManua.ls Logo

NetApp FC4600 - Page 177

NetApp FC4600
230 pages
Print Icon
To Next Page IconTo Next Page
To Next Page IconTo Next Page
To Previous Page IconTo Previous Page
To Previous Page IconTo Previous Page
Loading...
Chapter 6: Component Locations 167
Component
Locations on
the CDE3994
Controller-Drive
Tray and the
CDE3992
Controller-Drive
Tray
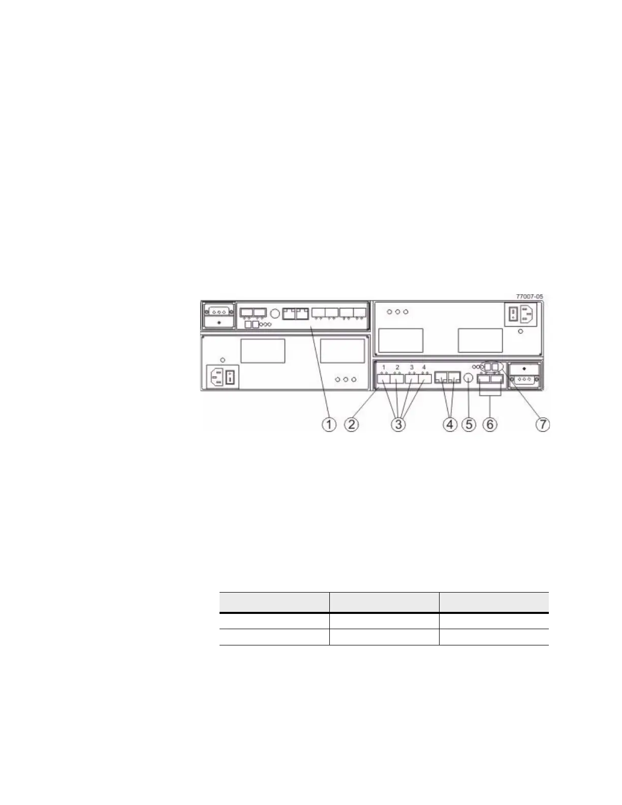
The following figure shows the AC power option.
Figure 13 Component Locations on the CDE3994 Contr
oller-Drive Tray and the
CDE3992 Controller-Drive Tray – Rear View
1. Controller A (Inverted)
2. Controller B
3. Host Ports (2 Ports for the CDE3992 Controller-Drive Tray
or 4 P
o
rts for the CDE3994 Controller-Drive Tray)
4. Ethernet Ports
5. Serial Port
6. Dual-Ported Drive Ports
7. Seven-Segment Display
Table 2 Drive Ports and Drive Channels on the CDE3994 Controller-Drive Tray
and the CDE3992 Controller-Drive Tray
Drive Channel Number Controller Drive Port Identifier
1 A 2 and 1
2 B 1 and 2

Table of Contents

Related product manuals