EasyManua.ls Logo

Notifier IFS-2600 - MIMIC Connection Diagram

Notifier IFS-2600
76 pages
Print Icon
To Next Page IconTo Next Page
To Next Page IconTo Next Page
To Previous Page IconTo Previous Page
To Previous Page IconTo Previous Page
Loading...
IFS-2600 Fire Indicator Panel
Technical Drawings
DOC-01-009 63
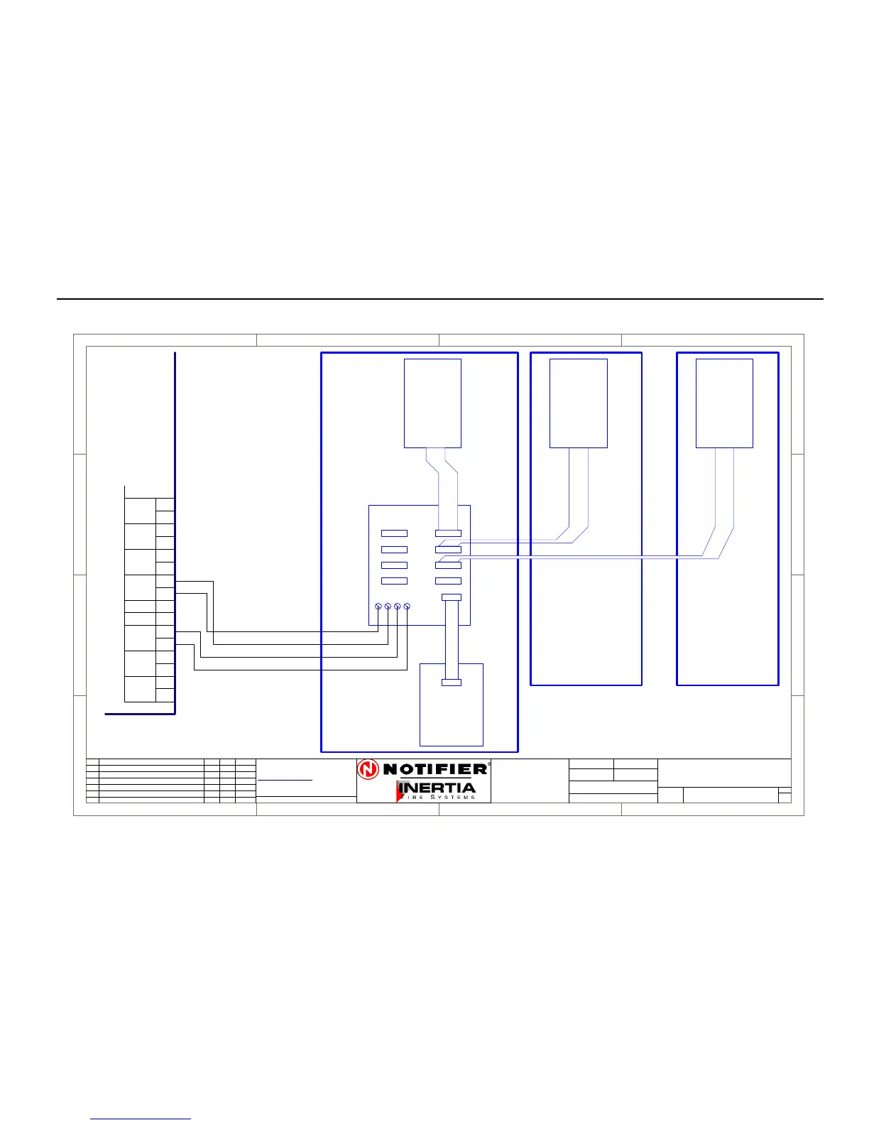
6.4.5. MIMIC Connection Diagram
1
1
2
2
3
3
4
4
D D
C C
B B
A A
Rev
Size
Drg.
No.
Title
Sheet:
Drawn/
Traced
Engineer
Design
Approved
This Drawing must not be used for Construction
unless signed as approved
7 Columbia Court,
Norwest Business Park
Baulkham Hills NSW 2153
AUSTRALIA
Tel
Fax
Email: support@inertia.com.au
A4
No.
Revision - revise on CAD. Do not amend byhand Eng. App. Date
Copyright
Thisdocument is & shall
remain the property of
Notifier Inertia Fire Systems
Unauthorised useof this
documentin any wayis
prohibited.
Drawing File No.
C
O
61 2 9894 1444
61 2 9899 4156
=DocumentFullPathAndName
Of:
A
1 1
2/2/04 G.W.
ZONES 1-8 ZONES 9-16
PCB810
PCB811
PCB812 PCB812
PCB812
ZONES 17-24
SERIAL BUS
MIM/26/KIT
MIM/EXT/26 MIM/EXT/26
MIM/26/KIT
1-8
9-16
17-24
25-32
33-40
41-48
49-56
57-64
Max 120 Meters
26-MIM-CON
N/O
BELL
0V
+24
TP 0V
ACF
0V
+24
HOLD
0V
+24
AUX
MAF ISO
DOOR
DATA
CLK
DOOR
INPUT
WARN
0V
+24
MIMIC
+
-
HOLD
DATA
CLK
+24
0V
FOR 8 ZONES
FOR EXTRA ZONES
STANDARD SIZES 8, 24 AND 64 ZONES
4/0.75mm cable
POWER AND SIGNAL RETURN
FITTED WITH
IFS2600 MIMIC
DRIVER
IFS2600
TERMINATION
BOARD

Other manuals for Notifier IFS-2600

Related product manuals