EasyManua.ls Logo

Omron CIMR-L7Z - Page 140

Omron CIMR-L7Z
225 pages
Print Icon
To Next Page IconTo Next Page
To Next Page IconTo Next Page
To Previous Page IconTo Previous Page
To Previous Page IconTo Previous Page
Loading...
IT-10
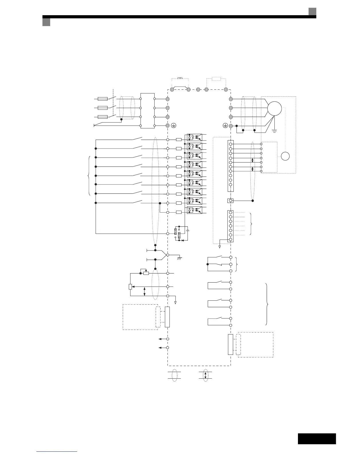
Cablaggio dell’inverter
Fig. 4 Schema di cablaggio
Regolazione
di tensione
Reattanza c.c. per migliorare il fattore
di potenza in ingresso (opzionale)
Resistenza di frenatura
(opzionale)
Contattore
magnetico
Potenza trifase
380 ... 480 V
50/60 Hz
L1
L2
L3
PE
Filtro di
linea
L1 (R)
L2(S)
L3(T)
(+1) (+2)
(-)
B1
B2
U/T1
V/T2
W/T3
TA 1
PG-X2
(opzionale)
Motore
IM/PM
TA 3
TA 2
P
P
PG
S1
S3
S2
S4
S5
S6
S7
BB
BB1
Ingressi
multifunzione
(impostazione di
fabbrica)
Marcia avanti/Arresto
Marcia indietro/Arresto
Velocità nominale
Esecuzione di controllo
Velocità intermedia
Velocità di livellamento
Non utilizzato
Blocco delle basi hardware
(nota 3)
SC
+24 V, 8 mA
IP24V (24 V)
CN5 (impostazione NPN)
Impulso A
Impulso B
Impulso Z
Uscita di monitoraggio
a impulsi RS-422
(100 m o inferiore)
E(G)
MA
MB
MC
Uscita a contatto
di errore
250 Vc.a., max. 1 A
30 Vc.c., max. 1 A
M1
M2
M3
M5
M4
M6
Comando di renatura
(impostazione di
fabbrica)
Controllo contattore
(impostazione di
fabbrica)
Inverter pronto
(impostazione di
fabbrica)
Uscita contatto
multifunzione
250 Vc.a., max. 1 A
30 Vc.c., max. 1 A
Alimentazione ingresso
analogico +15 V, 20 mA
Velocità di
riferimento
master 0 … 10 V
+V
A1
c.a.
0 V
P
2CN
2 kOhm
Ingresso analogico
(velocità riferimento)
2 kOhm
0 ... 10 V
Schede opzionali
di ingresso
Ingresso alimentazione
di controllo opzionale per
funzionamento di emergenza
al terminale B1
al terminale -
Ingresso alimentazione
di controllo
P0
N0
Doppini
intrecciati
Cavi
schermati
Nota:
1. I terminali del circuito principale sono indicati da due cerchi,
mentre quelli del circuito di controllo sono indicati da un solo cerchio.
2. L'impostazione di fabbrica predefinita di CN5 è NPN.
3. Per attivare l'inverter, entrambi gli ingressi BB e BB1 devono
essere chiusi. Se solo uno degli ingressi è chiuso, sul pannello
di controllo verrà visualizzato “BB” e non sarà possibile avviare
l'inverter.
Schede opzionali
di ingresso
3CN
Collegamento

Table of Contents

Other manuals for Omron CIMR-L7Z

Related product manuals