EasyManua.ls Logo

Omron CIMR-L7Z - Page 172

Omron CIMR-L7Z
225 pages
Print Icon
To Next Page IconTo Next Page
To Next Page IconTo Next Page
To Previous Page IconTo Previous Page
To Previous Page IconTo Previous Page
Loading...
PT-10
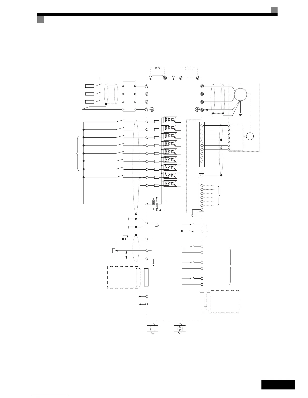
Ligar o variador
Fig 4 Diagrama de ligações
Ajuste
de tensão
Reactância DC para
melhorar o factor
de potência de entrada
(opcional)
Unidade de Resistência de
Frenagem (opcional)
Ligação
Contactor
magnético
Alimentação
trifásica
380 a 480 V
50/60 Hz
L1
L2
L3
PE
Filtro
de linha
L1(R)
L2(S)
L3(T)
(+1) (+2)
(-)
B1
B2
U/T1
V/T2
W/T3
TA 1
PG-X2
(Opcional)
Motor
IM/PM
TA 3
TA 2
P
P
PG
S1
S3
S2
S4
S5
S6
S7
BB
BB1
Entradas
multifunções
(Definição
de fábrica)
Funcionamento directo/paragem
Funcionamento inverso/paragem
Velocidade nominal
Inspecção em funcionamento
Velocidade intermédia
Velocidade de nivelamento
Não utilizado
Base block de hardware (nota 3)
SC
+24 V, 8 mA
IP24V (24 V)
CN5 (configuração NPN)
Impulso A
Impulso B
Impulso Z
Saída do monitor de impulso
RS-422
(100 m ou inferior)
E (G)
MA
MB
MC
Saída de contacto de falha
250 VAC, máx. 1 A
30 VDC, máx. 1 A
M1
M2
M3
M5
M4
M6
Comando de
travagem
(Definição de fábrica)
Controlo do contactor
(Definição de fábrica)
Variador preparado
(Definição de fábrica)
Saída de contacto
multi-função
250 VAC, máx. 1 A
30 VDC, máx. 1 A
Fonte de alimentação da
entrada analógica +15 V, 20 mA
Velocidade de
referência principal 0 a 10 V
+V
A1
CA
0 V
P
2CN
2 kOhm
Entrada analógica
(velocidade de referência)
2 kOhm
0 a 10 V
Placas de opção
de entrada
Entrada da fonte de alimentação
do controlo opcional para operação
de resgate
para o terminal B1
para o terminal -
Entrada da fonte de
alimentação do controlo
P0
N0
Condutores de
pares entrançados
Cabos
blindados
Nota:
1. Os terminais do circuito principal são assinalados com círculos
duplos e os terminais do circuito de controlo são assinalados com
um único círculo
2. A configuração de fábrica do CN5 é NPN
3. Para activar ambas as entradas do variador, BB e BB1 têm de ser
fechadas. Se apenas uma das entradas estiver fechada, será
apresentado “BB” no painel do operador e o variador não irá arrancar.
Placas de opção
de saída
3CN

Table of Contents

Other manuals for Omron CIMR-L7Z

Related product manuals