EasyManua.ls Logo

Omron SmartSlice GRT1 Series

Omron SmartSlice GRT1 Series
366 pages
To Next Page IconTo Next Page
To Next Page IconTo Next Page
To Previous Page IconTo Previous Page
To Previous Page IconTo Previous Page
Loading...
87
Digital I/O Units Section 4-6
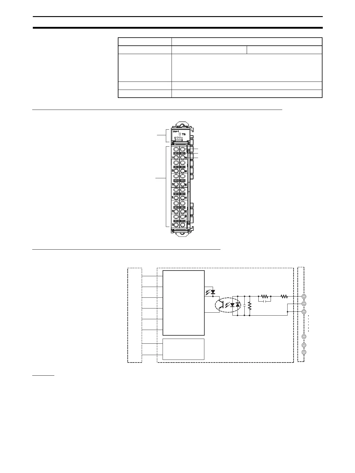
Component Names and Functions (Same for GRT1-IA4-1 and GRT1-IA4-2)
Internal Circuits (Same for GRT1-IA4-1 and GRT1-IA4-2)
Wiring Perform wiring as shown in the following figure.
OFF response time 55 ms max. 40 ms max.
Number of circuits 4 (no common)
It is necessary to share the same neutral AC signal or make
sure that the voltage between two input circuits is 600 V max.
(Refer to Wiring on page 87.)
Insulation resistance 20 MΩ min.
Dielectric strength 2,500 VAC (between AC input circuit and 24-V Unit circuit)
Item Specification
LED indicators
Indicate the Unit's status.
Terminal Block
Test pin
Release button
Terminal insertion hol
e
Terminal bloc
k
I/O LED
0A
0B
0B
3A
3B
3B
Base block
Main block
Internal circuits
Internal circuits

Table of Contents

Related product manuals