EasyManua.ls Logo

Omron SmartSlice GRT1 Series

Omron SmartSlice GRT1 Series
366 pages
To Next Page IconTo Next Page
To Next Page IconTo Next Page
To Previous Page IconTo Previous Page
To Previous Page IconTo Previous Page
Loading...
275
GRT1-PD2 and GRT1-PD2G I/O Power Feed Units Section 8-3
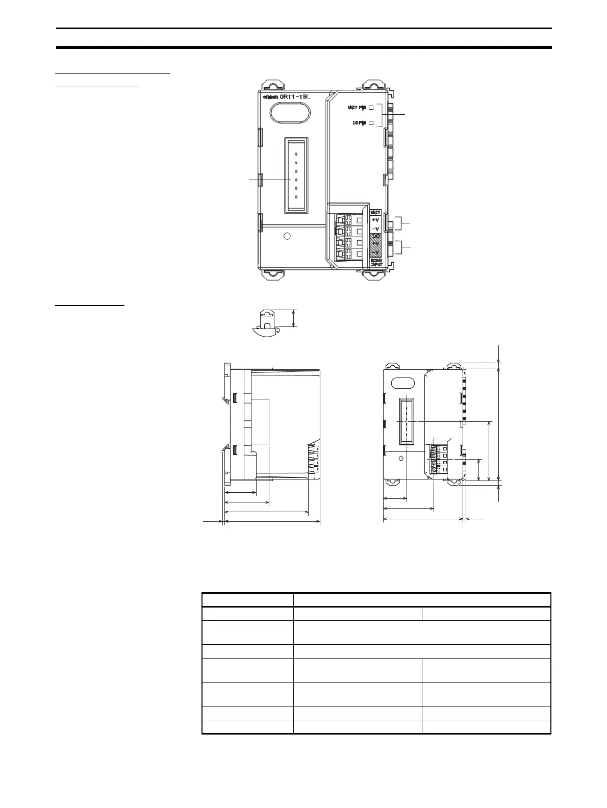
Component Names
and Functions
Dimensions
8-3 GRT1-PD2 and GRT1-PD2G I/O Power Feed Units
These Units are used to feed additional I/O power within the Slice I/O Termi-
nal.
Connector for
Turnback Cable
LED Indicators
Indicate the power supply status.
Unit power supply terminals
Supply power to the internal circuits of this Unit
and the connected Slice I/O Units.
I/O power supply terminals
These terminals supply power to external I/O
devices connected to this Unit.
11.9
16.2
17.1
58
36.8
2.4
83.5
43.7
2.9
2.9
23.1
32.4
69.7
61.2
1.5
Item Specification
Model GRT1-PD2 GRT1-PD2G
Power supply volt-
age
20.4 to 26.4 VDC (24 VDC, 15 to +10%)
Current capacity 4 A
Overcurrent protec-
tion
--- Yes
Reverse-current pro-
tection
--- Yes
V terminals 2 2
G terminals 2 2

Table of Contents

Related product manuals