EasyManua.ls Logo

Panasonic PT-DZ870E

Panasonic PT-DZ870E
190 pages
To Next Page IconTo Next Page
To Next Page IconTo Next Page
To Previous Page IconTo Previous Page
To Previous Page IconTo Previous Page
Loading...
Chapter 3ā€ƒBasic Operations — Projecting
ENGLISH - 59
Moving the lens to the home position
To move the lens to the home position, perform the following procedure.
1) While the [SHIFT] adjustment screen is displayed, press the <DEFAULT> button on the remote
control.
f The [HOME POSITION] screen is displayed.
LENS
HOME POSITION
EXECUTE
CANCEL
MENU
ENTER
2) While the [HOME POSITION] screen is displayed (for approximately five seconds), press the <ENTER>
button.
f [PROGRESS] is displayed in the [HOME POSITION] screen, and the lens returns to the home position.
Note
f The home position of the lens is the lens position when the lens is being replaced or when the projector is being stored, and it is not the
optical center of the screen.
f You can also display the [HOME POSITION] screen by pressing the <LENS> button on the control panel or the <SHIFT> button on the
remote control for at least three seconds.
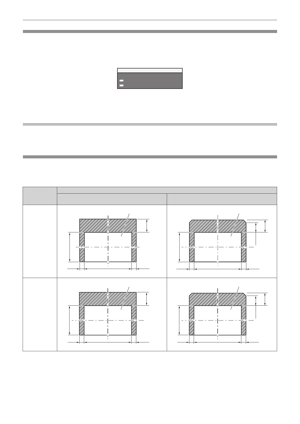
Adjustment range by the lens position shift (optical shift)
Perform the lens position shift within the adjustment range.
The focus may change when the lens position is shifted out of the adjustment range. This is because the movement of the lens is restricted
to protect the optical parts. Projection position can be adjusted with the optical axis shift based on the standard projection position in the
respective range.
Lens type
Zoom lens
Standard zoom lens, ET-DLE150, ET-DLE250,
ET-DLE350, ET-DLE450
ET-DLE085
PT-DZ870E
Standard projection position
Projection screen height V
Projection screen width H
0.5 V
0.1 H 0.1 H
Standard projection position
Projection screen height V
Projection screen width H
0.1 H 0.1 H
0.5 V
0.4 V
PT-DW830E
Standard projection position
Projection screen height V
Projection screen width H
0.1 H 0.1 H
0.6 V
Standard projection position
Projection screen height V
Projection screen width H
0.1 H 0.1 H
0.6 V
0.5 V

Table of Contents

Related product manuals