EasyManua.ls Logo

Panasonic TH-37PG9W - DA-Board (3 of 6) Schematic Diagram

Panasonic TH-37PG9W
178 pages
Print Icon
To Next Page IconTo Next Page
To Next Page IconTo Next Page
To Previous Page IconTo Previous Page
To Previous Page IconTo Previous Page
Loading...
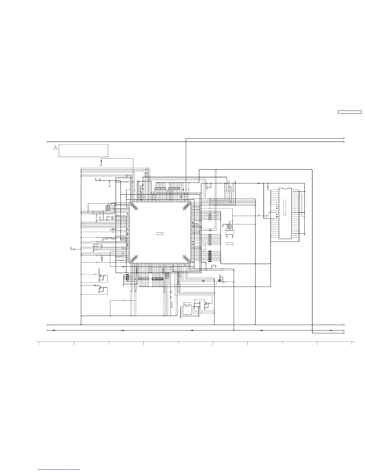
14.31. DA-Board (3 of 6) Schematic Diagram
AQ_D13
AP_OE
AQ_D14
P3V_SCL2
AO_A18
AO_A11
AO_A6
P3V_SDA2
AQ_D4
AO_A18
AQ_D11
3V_SCL1
RXD_PC
OSD_YM
AO_A10
AO_A14
OSD14
OSD12
AQ_D9
AQ_D10
AR_IIC_CONT
AO_A4
NRST
AO_A1
OSD1
AO_A15
3VTXD_TU
AP_CE
AO_A7
OSD_CKIN
AQ_D6
AP_CE
NRST_FP
AO_A14
AQ_D0
AO_A9
AO_A5
AQ_D5
AQ_D1
OSD_HDO
AQ_D3
REM_IN
AA_RTC_INT
3V_SDA1
AH_REM_INH
OSD2
3V_SCL1
AO_A9
AQ_D15
AO_A0
AO_A7
OSD7
AQ_D7
AQ_D13
AA_CABLE_DET
AO_A17
3V_SCL3
TXD_PC
AQ_D5
AQ_D12
AQ_D7
AQ_D15
AO_A13
OSD4
AAE_MCLD
AAE_MCCLK
AQ_D1
AO_A3
AO_A6
AO_A0
AO_A16
OSD3
AQ_D9
AO_A1
OSD_VDO
AP_WE AQ_D4
AA_ALL_OFF1
AQ_D10
OSD0
3V_SDA3
AO_A4
AO_A2
OSD11
OSD5
OSD9
AQ_D14
3.3V_SOS
OSD10
AQ_D2
AQ_D6
AO_A12
A_TV_ON/OFF
AO_A3
AO_A11
3V_SDA1
AP_WE
AQ_D8
AO_A12
AQ_D0
OSD6
3VRXD_TU
AH_REM_OUT
OSD15
AAE_MCDATA_O
AQ_D11
AO_A8
OSD_YS
AR_IIC_INT
AP_OE
OSD8
AO_A2
AQ_D3
AQ_D8
STB_ON
AO_A5
AQ_D12
AO_A17
AO_A16
OSD_HDIN
AC_GOOD
AO_A8
AQ_D2
AO_A19
AO_A10
AO_A13
OSD13
DPMS_HD
TRCD3
TRCD2
TRCD1
TRCD0
TRCST
SOUND_MUTE
EXTRG0
5V_SOS
POWER_STAT
AA_DISPEN
AA_PANEL_STBY_ON
DRVMUTE
ALARM
15V_SOS
KEY_INPUT
3V_SCL4
3V_SDA4
READY
GENX_RST
DRVMUTE
A_TV_ON/OFF
UART_SW
LVDS_PD
P_ON/OFF
AO_A15
EXTRG0
KEY_DET
AH_LED_G
AH_LED_R
DPMS_VD
R4764
47
R4820
10k
STB3.3V
R4777
39k
R4732
100
R4763
0
R4823
10k
R4701
EXB38V103JV
C4861
16V
1u
R4804
3.3k
C4754
16V 0.1u
R4812
10k
C4744
16V
0.1u
C4750
16V 0.1u
R4723
100
R4821
1k
R4718
10k
C4733
50V
1000p
R4790
100
C4718
16V
0.1u
C4714
16V
0.1u
R4781
100
R4895
100
R4709
100
R4735
100
R4726
10k
C4704
16V
0.1u
R4870
10k
C4705
16V
0.1u
R4868
6.8k
C4710
16V
0.1u
R4864
5.6k
R4711
10k
C4716
16V
0.1u
R4860
10k
R4748
0
L4701
J0JHC0000096
R4773
0
R4715
100
C4862
16V
0.1u
R4766
EXB2HV470JV
R4829
1k
C4707
16V
0.1u
R4719
10k
R4716
10k
R4772
100
R4727
100
R4738
100
R4866
10k
R4704
2.7k
L4704
J0JHC0000096
C0EBE0000447
IC4704
1
Vout
2
VDD
3
GND
5
N.C.
4
N.C.
R4749
0
R4765
47
TP4901
R4819
100
R4760 2.7k
C4708
16V
0.1u
R4806
100
R4746
10k
R4759
22
C4715
16V 0.1u
3.3V
R4743 22
C4752
50V 15p
R4814
100
R4818
100
R4741
EXB2HV100JV
TP4902
IC4702
1
A15
2
A14
3
A13
4
A12
5
A11
6
A10
7
A9
8
A8
9
NC
10
NC
11
WE#
12
RESET#
13
NC
14
NC
15
RY/BY#
16
A18
17
A17
18
A7
19
A6
20
A5
21
A4
22
A3
23
A2
24
A1
25
A0
26
CE#
27
VSS
28
OE#
29
DQ0
30
DQ8
31
DQ1
32
DQ9
33
DQ2
34
DQ10
35
DQ3
36
DQ11
37
VCC
38
DQ4
39
DQ12
40
DQ5
41
DQ13
42
DQ6
43
DQ14
44
DQ7
45
DQ15/A-1
46
VSS
47
BYTE#
48
A16
R4792
1k
Q4701
B1CBHD000002
G
D
S
C4709
16V
0.1u
C4753
50V 1000p
R4826
100k
R4822
10k
R4780
100
R4710
10k
R4830
10k
R4717
100
R4848
1k
C4866
16V
0.1u
C4749
16V
0.1u
C4865
16V
4.7u
R4702
2.7k
R4775
10k
R4754 5.6k
R4729
100
R4722
2.7k
R4824
100k
C4706
16V
0.1u
R4751
0
R4734
10k
R4757
22
R4815
10k
Q4802
B1ABCF000138
R4791
100
R4755
22
R4779
10k
L4702
J0JHC0000096
R4855
0
C4711
16V
0.1u
R4707
100
R4728
10k
IC4703
C3EBJC000059
1
E0
2
E1
3
E3
4
Vss
5
SDA
6
SCL
7
WC
8
Vcc
STB3.3V
R4769 2.7k
R4750
0
C4863
16V
0.1u
R4808
3.3k
R4767
EXB2HV470JV
R4865
10k
MN103SB30RGL
IC4701
1
P235
2
P234
3
P233
4
P232
5
P231
6
P230
7
P120/D16
8
P121/D17
9
P122/D18
10
P123/D19
11
P124/D20
12
P125/D21
13
P126/D22
14
P127/D23
15
IVSS
16
IVDD
17
P137/D31
18
P136/D30
19
P135/D29
20
P134/D28
21
P133/D27
22
P132/D26
23
P131/D25
24
P130/D24
25
P213
26
P212
27
P211
28
P210
29
P207
30
P206
31
VSS
32
VDD
33
P205
34
P204
35
P203
36
P202
37
P201
38
P187/SBT2
39
P186/SBI2
40
P185/SBT1/TM910A
41
P184/SBI1
42
P183/SBO1
43
P182/SBT0/TM810A
44
P181/SBI0
45
P180/SBO0
46
P061/A17
47
P060/A16
48
P057/A15
49
P056/A14
50
P055/A13
51
P053/A12
52
P052/A11
53
P051/A10
54
P050/A9
55
IVDD
56
IVSS
57
P064/A20
58
P065/A21
59
P0C0/NWE0
60
P066/A22
61
P063/A19
62
P062/A18
63
P047/A8
64
P046/A7
65
P045/A6
66
VDD
67
IVSS
68
P145/HOUTA
69
P142/VCLKOUTA
70
IVDD
71
PWROUTR
72
RTCXI
73
RTCX0
74
PSCNT
75
NTEST
76
P044/A5
77
P043/A4
78
P042/A3
79
P041/A2
80
P0C1/NRE
81
P0C2/NCS0
82
P200/ZA1
83
VSS
84
NRST
85
VDD
86
P172/SDA2
87
P173/SCL2
88
P170/SDA1
89
P171/SCL1
90
P025/HSYNC
91
IVSS
92
OSDXI
93
IVDD
94
P024/VSYNC/IRQ1
95
P021/YMOUT0/TM810B
96
P020/YSOUT
97
P000/R04
98
P001/R03
99
P002/R02
100
P003/R01
101
P004/R00
102
IVDD
103
IVSS
104
P005/G05
105
P006/G04
106
P007/G03
107
P010/G02
108
P011/G01
109
P023/G00
110
P012/B04
111
P013/B03
112
P014/B02
113
P015/B01
114
IVSS
115
P022/B00/TM910B
116
VDD
117
IVDD
118
P177/SDA0B
119
P176/SCL0B
120
P175/SDA0A
121
P174/SCL0A
122
P030/RMIN/IRQ0
123
PVDD
124
PLLTST
125
PVSS
126
AVDD2
127
AVSS2
128
IVSS
129
AD1N6
130
ADIN7
131
ADIN8
132
ADIN9
133
ADIN10
134
ADIN11
135
P160/ADIN0/TM0IO
136
P161/ADIN1/TM1IO
137
P162/ADIN2/TM2IO
138
P163/ADIN3/TM3IO
139
P240/ADIN4
140
P241/ADIN5
141
P242/CECINA
142
P243/CECINB
143
IVSS
144
OSCXO
145
OSCXI
146
IVDD
147
TRCD3
148
TRCD2
149
TRCD1
150
TRCD0
151
TRCST
152
TRCCLK
153
EXTRG1
154
EXTRG0
155
SDATA
156
SCLOCK
157
P100/NCS2A
158
P101/IRQ2A
159
VDD
160
VSS
161
P102/IRQ3A
162
P103/IRQ4A
163
P104/IRQ5A
164
P105/IRQ6A
165
P106/IRQ7A
166
P107/IRQ8A
167
P117/DPHI0
168
P116/DPVI0
169
P115/DPHI1
170
P114/DPVI1
171
P113
172
P112
173
P111
174
P110
175
P237
176
P236
R4724
10k
R4869
100
L4703
J0JHC0000096
R4740
EXB2HV100JV
R4774
1k
C4719
16V
0.1u
R4762
0
R4770
47
R4768
47
STB3.3V
R4813
10k
R4828
100
Q4803
B1ABCF000138
STB3.3V
R4847
1k
X4701
H0J100500030
Q4712
B1ABCF000138
R4752
0
R4756
5.6k
R4863
0
C4751
50V 15p
C4864
100p
50V
C4713
16V
0.1u
R4947
10k
3.3V
R4761
0
R4786
EXB38V103JV
3.3V
R4703
100
C4717
16V
0.1u
R4793
12k
R4771 2.7k
C4701
16V
0.1u
R4753
22
R4758
2.7k
R4730
100
C4712
16V
0.1u
R4745
0
R4737
10k
R4817
0
R4713
EXB2HV100JV
STB1.5V
R4706
3.3k
R4742 22
R4712
EXB2HV100JV
R4795
10k
D4701
MA2J72800L
R4783
10k
R4788
100
C4703
6.3V
10u
R4747
EXB38VR000V
R4796
1.8k
R4708
10k
8M FLASH MEMORY
EEPROM_WP
SOS8_SS
15V_SOS
SOS7_SC2
SOS6_SC1
SOS4_PS
3.3V_SOS
FAN_SOS
5V_SOS
262319 22 24 252120 27
11
12
13
MICOM
23
24
25
RESET
EEPROM
21
22
DA-BOARD (3/6)
TVRN927-4
TH-37/42PG9W
DA-Board (3 of 6) Schematic Diagram
TH-37/42PG9W
DA-Board (3 of 6) Schematic Diagram
TZTNP01ZPTU (37inch)
TZTNP04ZQTU (42inch)
TH-37PG9W / TH-42PG9W
101

Table of Contents

Related product manuals