EasyManua.ls Logo

Parker HPD2N - Appendix A: HPD Drive Mechanical Dimensions

Parker HPD2N
125 pages
Print Icon
To Next Page IconTo Next Page
To Next Page IconTo Next Page
To Previous Page IconTo Previous Page
To Previous Page IconTo Previous Page
Loading...
Parker Hannifin S.p.A. - S.B.C. Division HPD N User’s Manual
89
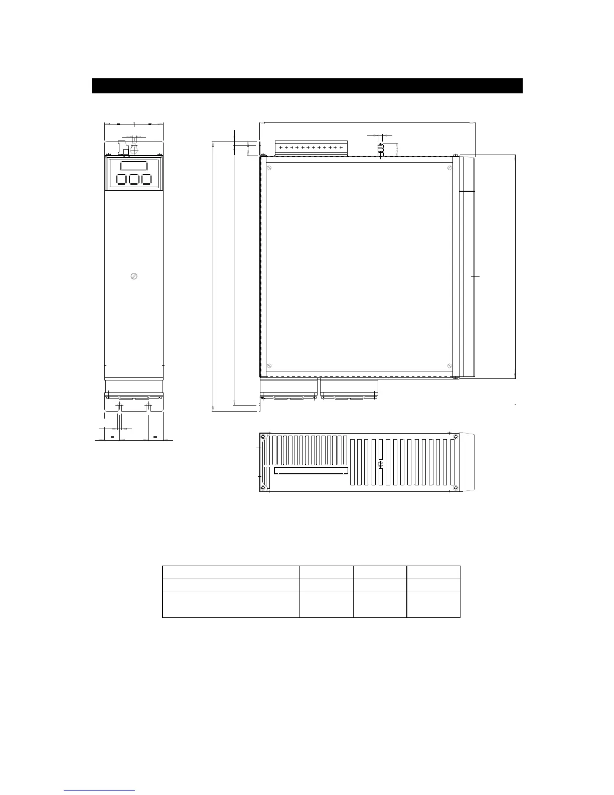
6. Appendix A: HPD drive mechanical dimensions
316
20
301
40
5.5
81.5
5.5
B
5
A
17
M5
Dimensions can be changed at discretion of the manufacturer.
drive type A B weight kg
HPD2N 348 335 5.1
HPD5N, HPD8N, HPD16N,
HPD20N,HPD24N
377 364 5.5

Table of Contents

Related product manuals