EasyManua.ls Logo

Piazzetta MP 973 - Installation Procedures; General Installation Requirements; Construction of the Lining Wall

Piazzetta MP 973
64 pages
Print Icon
To Next Page IconTo Next Page
To Next Page IconTo Next Page
To Previous Page IconTo Previous Page
To Previous Page IconTo Previous Page
Loading...
Pursuant to current regulations on the safety of electrical equipment, you must contact a Piazzetta After-Sales Service Centre or a qualied electrician
for all and any work connected with installation, maintenance or servicing that involves access inside the cladding/surround or the smoke chamber.
Cladding/surround
Having completed assembly of the stove and installed any external room thermostat, proceed with erection of the lining walls or assembly of the
rebox surround.
• For Gruppo Piazzetta S.p.A. surrounds, follow the instructions enclosed with the product.
DT2011812-00
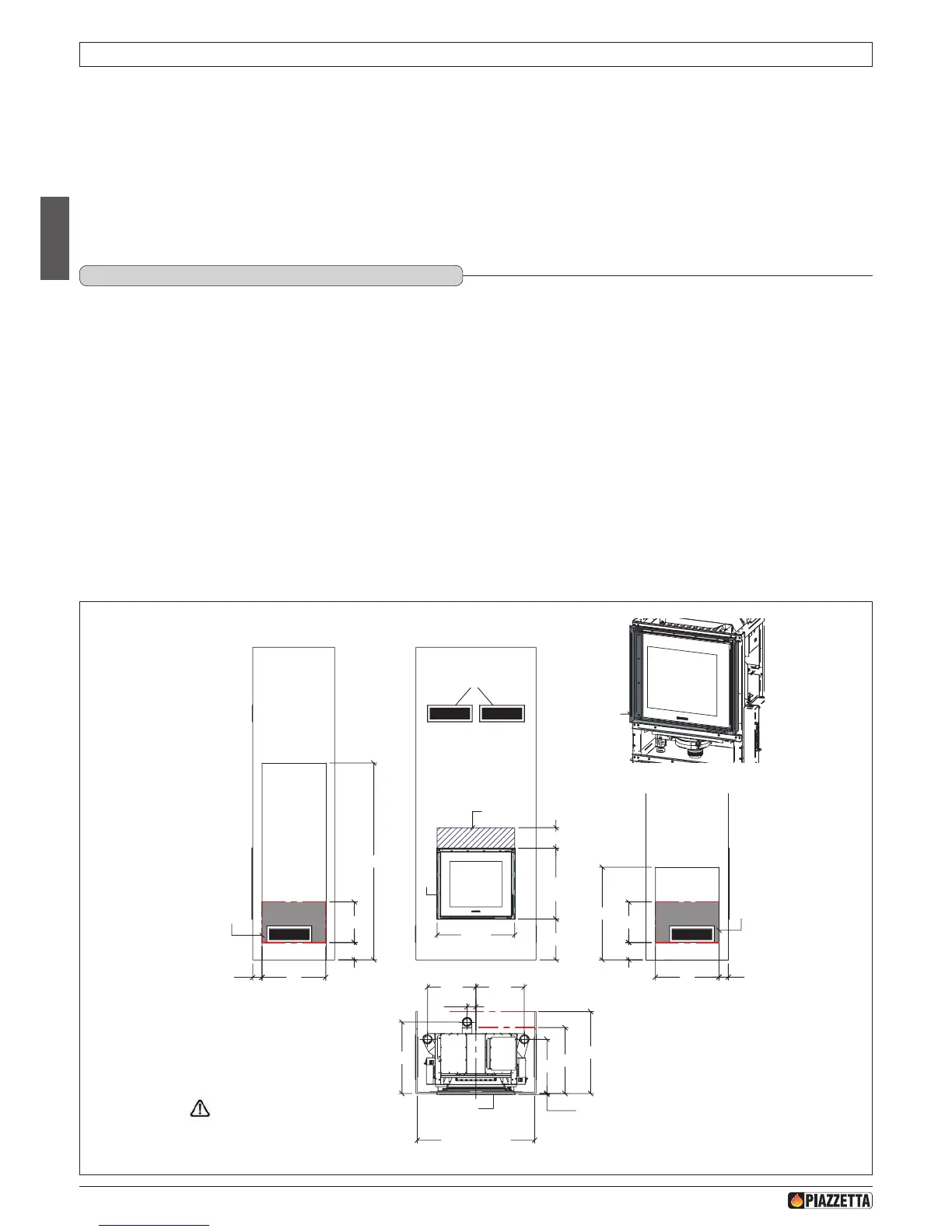
5.0 INSTALLATION
The rebox surround or lining wall must be self-supporting irrespective of the building materials and under no circumstances must come into contact
with the actual stove/rebox. The surround or lining wall must also be made with non-ammable materials in compliance with standards and legislation.
Two “service openings” must be made so that pellets can be loaded into the stove and for cleaning or maintenance purposes. The measurements of
reference for making these openings are given below. The standard version of the appliance is with the opening for pellet loading on the right side. If it
is necessary to change sides for the opening (see the paragraph HOPPER OPENING”), both “service openings” must be 170 in height.
a It is advisable to check appliance operation before nishing erection of the lining wall.
Upon completion of the lining wall and after all the building works have been stabilised and tested, the whole installation must in any case be tested to
check correct operation, following the instructions given in the booklet under the paragraph LIGHTING FOR THE FIRST TIME”.
a Removal of the hearth surround trim and/or non-compliance with the distances when constructing the lining wall could affect correct
airow and consequently the safety of the product.
a Failure to install the two service openings according to the specied dimensions will make it difcult to carry out the maintenance of
the appliance, with the consequent risk of extended and extremely costly intervention operations.
DT2011811-01
5.1 CONSTRUCTION OF ThE LINING wALL
35÷ 38
61
HOLE
67
HOLE
101
MINIMUM HEIGHT
7,7
61,8
41,8 41,8
46,8
170÷ 173
80÷ 83
15÷ 18
35
8
50
50
8
15÷ 18
35
SERVICE OPENING ON
PELLET HOPPER LOAD. SIDE
SERVICE
OPENING
GRILLE POSITION AREA
GRILLE POSITION AREA
HOOD
GRILLES
18
(1)
NOTE:
Drawing referred to installation of the product
without other cladding.
For the measurements of the lining wall with
installation of special claddings/surrounds,
see the installation booklet of the actual
cladding/surround.
The hearth surround trim is an
integral part of the product and
must never be removed.
0,8
HEARTH SURROUND TRIM
HEARTH
SURROUND TRIM
(1) Area of the lining wall to be
made with material resistant to a
temperature of at least 400°C.
(2) Depth of lining wall with side
flue gas outlet.
(3) Depth of lining wall with rear
flue gas outlet.
57
66
(2)
(3)
HEARTH
SURROUND
TRIM
Fig. 27
H072047UK0 / DT2001513 – 04
18
English
DT2011822-00
DT2032544-02

Table of Contents

Related product manuals