EasyManua.ls Logo

ProMinent DULCOMETER D1Cc - Page 37

ProMinent DULCOMETER D1Cc
155 pages
Print Icon
To Next Page IconTo Next Page
To Next Page IconTo Next Page
To Previous Page IconTo Previous Page
To Previous Page IconTo Previous Page
Loading...
Extern
Netz
Pumpe 2 (senken)
Pumpe 1 (heben)
RC-Schutzbeschaltung
(optional)
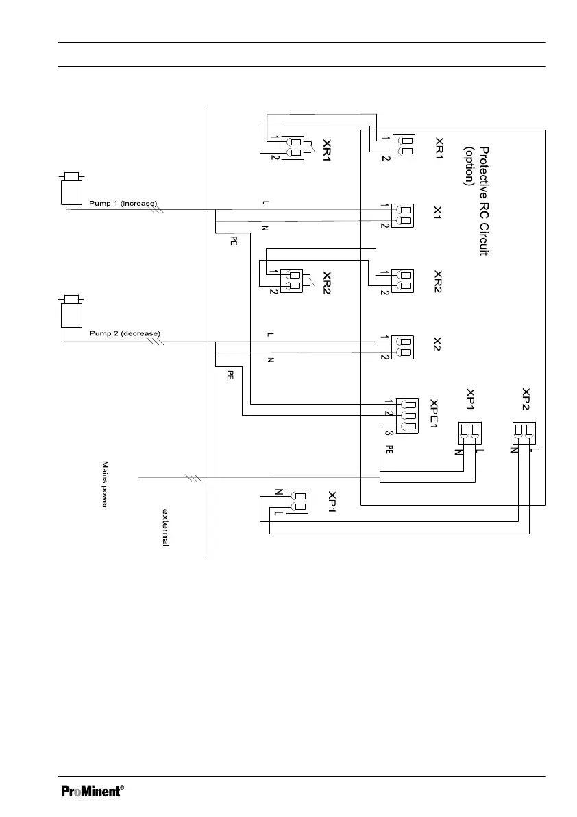
Fig. 13: Protective RC circuit terminal diagram
D1Cb mounting
37

Table of Contents

Related product manuals