EasyManua.ls Logo

Regency CV40E-12 - Clearances

Regency CV40E-12
96 pages
Print Icon
To Next Page IconTo Next Page
To Next Page IconTo Next Page
To Previous Page IconTo Previous Page
To Previous Page IconTo Previous Page
Loading...
City Series CV40E-12 | 29
installation
Clearances
The clearances listed below are minimum distances unless otherwise stated.
A major cause of chimney related res is failure to maintain required clearances (air space) to combustible materials. It is of the greatest importance that
this replace and vent system be installed only in accordance with these instructions.
Caution Requirements
The top, back and sides of the replace are dened by
standos. The metal ends of the stando may NOT be
recessed into combustible construction.
WARNING
Fire hazard is an extreme risk
if these clearances (air space) to combustible materials are
not adhered to. It is of greatest importance that this replace
and vent system be installed only in accordance with these
instructions.
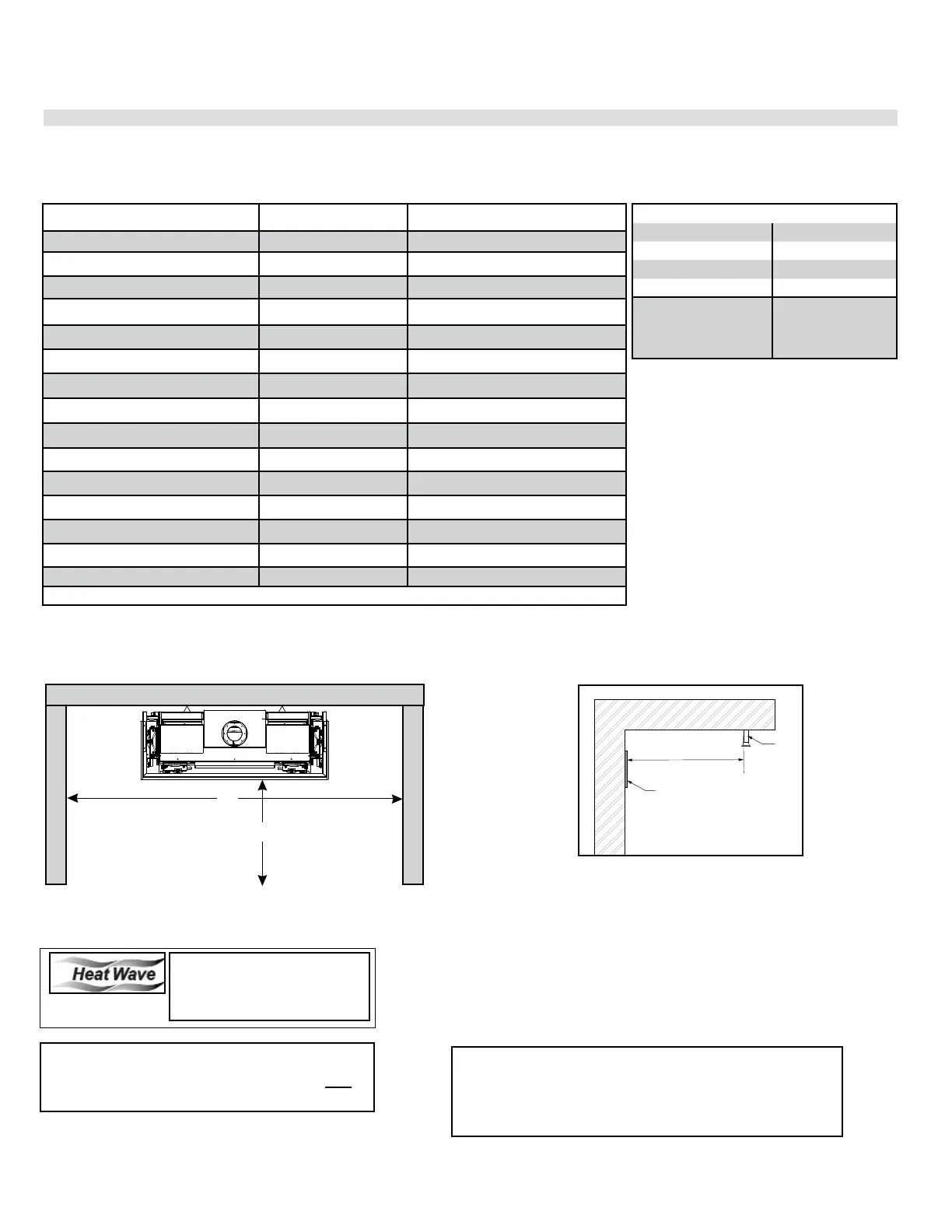
Clearance: Single Sided Dimension Measured From:
A: From Floor Min. 0" Bottom of Fireplace Opening
A1 : Mantel Height (min.) ** Top of Fireplace Opening
B: Sidewall (on one side) 8-1/2" (216mm) Side of Fireplace Opening
C: Enclosure Width (min.) 46-3/4" (1187mm) Minimum inside dimensions
D: Mantel Depth (max.) **
E: Alcove Width 84" (2134mm) Side wall to side wall (min.)
F: Alcove Depth 36" (914mm) Front of Unit
G: To Enclosure Ceiling (min/max) 0-3" (0-76mm) From top of enclosure
H: Convection Air outlet 120 sq. inches (min) * Top/front or side of enclosure
I: Enclosure Depth (min.)
19" (483mm)
Minimum inside dimensions
J: Opening Height
15-1/16" (383mm)
Bottom/Top of Fireplace Opening
K: To Ceiling (min) All 3 sides
1-1/2" (38mm)
To Top of Ceiling
L: Chase Enclosure (min.)
63" (1600mm)
From base of unit/oor
M: Clearance to sprinkler head
(Min.)
36" (914mm)
Perpendicular from chase grill
Hearth 0" No hearth required
** See mantel clearances chart in this manual
Flue Clearances to Combustibles
Horizontal - Top 3" (76mm)
Horizontal - Side 2" (51mm)
Horizontal - Bottom 2" (51mm)
Vertical 2" (51mm)
Passing through wall/
floor/ceiling - when
restop is used.
1-1/2" (38mm)
* A minimum of 120 square inches of open area, not lower than 3" (76 mm) from top of
enclosure, required for all installations — this can be achieved by having an open area in
front, both sides, and/or above as shown in the four diagrams on the next page.
The HeatWave Duct Kit has
dierent clearance and framing re-
quirements, check the HeatWave
manual for details.
E
F
Alcove
Side View
L
Chase grill
Sprinkler
M

Table of Contents

Related product manuals