EasyManua.ls Logo

Regency CV40E-12 - Dimensions

Regency CV40E-12
96 pages
Print Icon
To Next Page IconTo Next Page
To Next Page IconTo Next Page
To Previous Page IconTo Previous Page
To Previous Page IconTo Previous Page
Loading...
City Series CV40E-12 | 7
dimensions
33
7
16
"
849mm
43"
1091mm
25
9
16
"
648mm
46
1
4
1175mm
7
1
4
"
183mm
40
1016mm
Ø 6
3
4
"
171mm
Ø
4"
102mm
11
7
16
"
291mm
21
7
8
"
556mm
18
11
16
"
475mm
17
11
16
"
449mm
15
1
16
"
382mm
7
7
8
"
200mm
37
3
8
"
949mm
34
5
8
"
879mm
10
1
2
"
267mm
"
"
2'' (51mm)
13''
(330mm)
3-1/2''
(89mm)
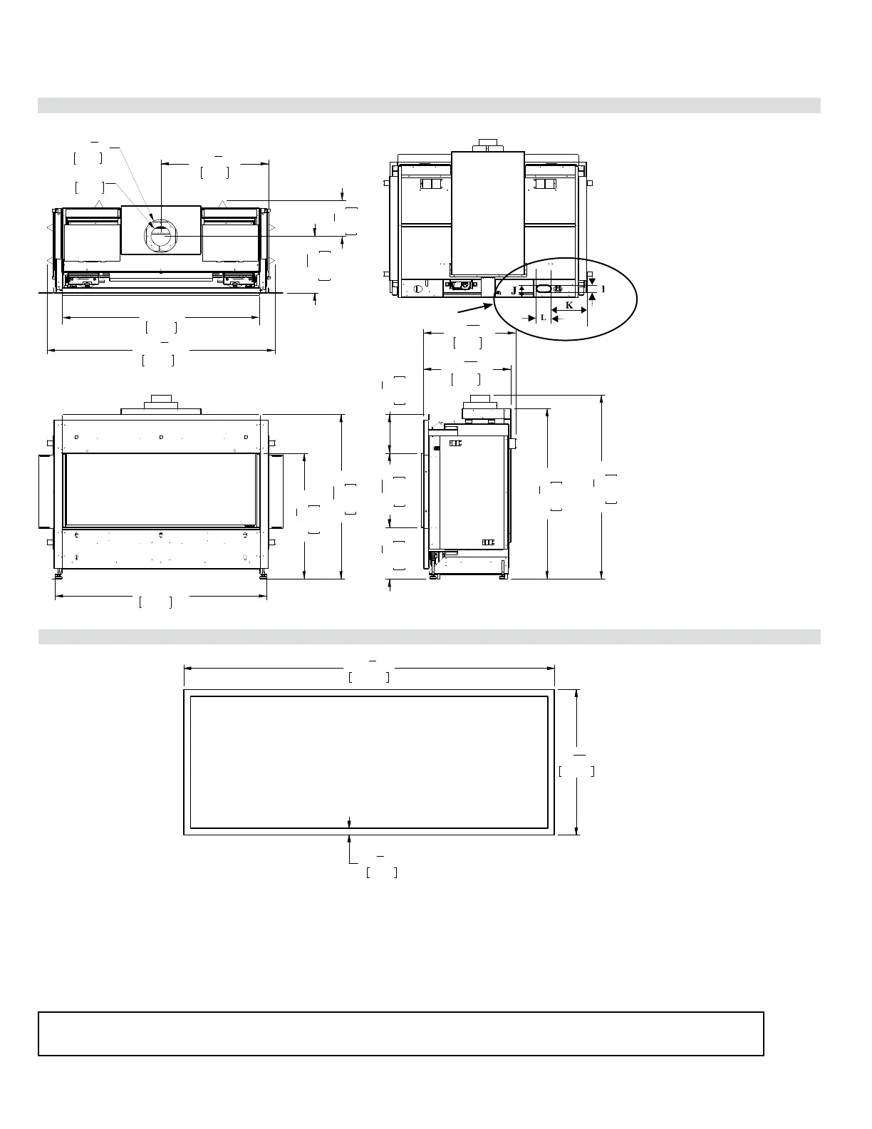
Note: Electrical connection on left hand side of the appliance.
A metal receptacle box is supplied/installed with the appliance to make all 120 volt electrical connections.
16
5
16
"
414mm
41
5
8
"
1057mm
3
4
"
19mm
PROCESS :
DWN:
SIGN:
E.C.N.:
DATE:
THIS DRAWING IS THE PROPERTY OF FPI LTD., IT MAY NOT BE COPIED IN WHOLE OR IN PART, OR DISCLOSED TO A THIRD PARTY WITHOUT OUR PRIOR WRITTEN CONSENT.
PART :
MAT'L :
UNITS IN INCHES
DIMENSIONS
0.000
=
0.01 CRITICAL
0.000
= SPECIFIED TOLERANCE
0.000 =
0.031
0.000 REF = REFERENCE ONLY
ANGULAR =
1
TOLERANCES UNLESS
OTHERWISE STATED
DO NOT SCALE
DRAWING
3RD ANGLE
PROJECTION
REV:
PART NO:
FIREPLACE PRODUCTS
INTERNATIONAL
656-451
SFORSYTHE
10 GA COLD ROLL
CV40 FRONT FRAME
A
LASERCUT
1/17/2020
DATE:
SCALE:
1:8
Optional Clean Trim Faceplate Dimensions
CV40E Dimensions
Note: Height Dimension may vary depending on the height of the leveling legs.
Dimensions will appear as (inches)" / (metric)mm throughout this manual. The inches are rounded to the
nearest 1/16" when converted, when greater accuracy is required, use the metric dimensions.
Note: These units are non-load bearing.
ALL PICTURES / DIAGRAMS SHOWN THROUGHOUT THIS MANUAL ARE FOR ILLUSTRATION PURPOSES ONLY.
ACTUAL PRODUCT MAY VARY DUE TO PRODUCT ENHANCEMENTS.
Gas Line Entry

Table of Contents

Related product manuals