EasyManua.ls Logo

Regency CV40E-12 - TV Recessed into Wall; Maximum TV Recess; TV Flush with Hearth

Regency CV40E-12
96 pages
Print Icon
To Next Page IconTo Next Page
To Next Page IconTo Next Page
To Previous Page IconTo Previous Page
To Previous Page IconTo Previous Page
Loading...
38 | City Series CV40E-12
installation
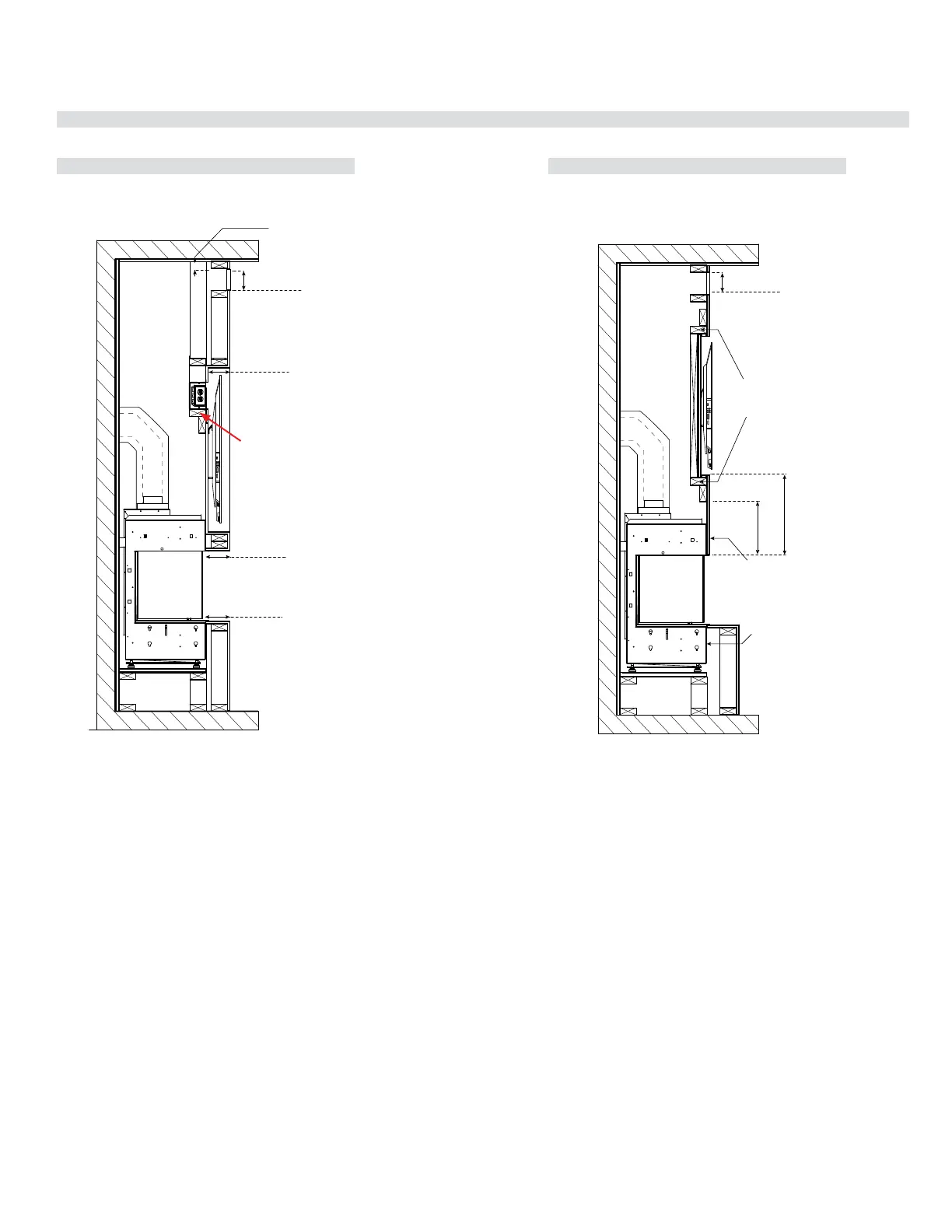
TV Recessed into Wall
Maximum TV Recess TV Flush with Hearth
Max. 2 x 4 stud
Max. 2 x 4 stud
CB40 Typical Installs
MAXIMUM TV RECESS FLUSH TV WITH HEARTH
5/8”
4 (117 mm) maximum TV recess
using 1/2” (13 mm) drywall
Flush wall TV recess using 1/2" (13 mm) drywall
Max 36”
Hearth
1/8
Max 5
Mantle
5/8
Max 4
TV recess with drywall
up against unit
Max 3” (76 mm)
To Top of Enclosure
2
120in min
Chase vent opening
Header Stud
17.5
(445 mm)
min
12” min (305 mm)
Screws must not
penetrate unit more
than 1/2” (13 mm).
Adhere to “No Screw
zones painted on unit.
Glue can be used
as an alternative.
Max 3” (76 mm)
To Top of Enclosure
2
120in min
Chase vent opening
(includes 1/2" drywall)
(117 mm)
(130 mm)
(914 mm)
Max. 2 x 4 stud
Max. 2 x 4 stud
CB40 Typical Installs
MAXIMUM TV RECESS FLUSH TV WITH HEARTH
5/8”
4 (117 mm) maximum TV recess
using 1/2” (13 mm) drywall
Flush wall TV recess using 1/2" (13 mm) drywall
Max 36”
Hearth
1/8
Max 5
Mantle
5/8
Max 4
TV recess with drywall
up against unit
Max 3” (76 mm)
To Top of Enclosure
2
120in min
Chase vent opening
Header Stud
17.5
(445 mm)
min
12” min (305 mm)
Screws must not
penetrate unit more
than 1/2” (13 mm).
Adhere to “No Screw
zones painted on unit.
Glue can be used
as an alternative.
Max 3” (76 mm)
To Top of Enclosure
2
120in min
Chase vent opening
(includes 1/2" drywall)
(117 mm)
(130 mm)
(914 mm)
CB40E shown CB40E shown

Table of Contents

Related product manuals