EasyManua.ls Logo

Ridder RB50EPLUS - Attach the tube motor to the guiding unit

Ridder RB50EPLUS
36 pages
Print Icon
To Next Page IconTo Next Page
To Next Page IconTo Next Page
To Previous Page IconTo Previous Page
To Previous Page IconTo Previous Page
Loading...
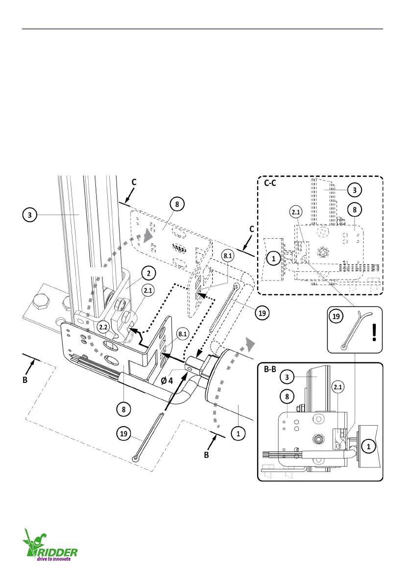
4.4 Aach the tube motor to the guiding unit
Aach the cable-carrier bracket (8) to the guiding unit (2) at the same time as the tube motor (1).
Refer to view B-B. Refer to view C-C if the installaon is on the other side of the roller screen.
Do the procedure that follows.
1. Align the hole of ø 4 mm (for the split pin 19) with the opening 2.2.
2. Put the cable-carrier bracket (8) in posion with the long side pointed to the guiding unit (2).
3. Put the power cable of the tube motor (1) along the long side of the cable-carrier bracket (8).
4. Move the head (10x10) of the tube motor (1) through the boom hole (8.1) of the cable-carrier
bracket (8).
5. Put the head of the tube motor (1) fully into the hole (10x10) of the aachment bracket (2.1) of
the guiding unit (2). At this me the cable-carrier bracket (8) is also put in the correct posion.
6. Put the split pin (19) in the hole of ø 4mm.
7. Use the split pin (19) and safety the assembly.
(C-C)
(C-C)
4.4.1
Ridder Drive Systems
T +31 (0)341 416 854 F +31 (0)341 416 611 I www.ridder.com
16

Related product manuals