EasyManua.ls Logo

Rockwell Automation Allen-Bradley Kinetix 300

Rockwell Automation Allen-Bradley Kinetix 300
75 pages
To Next Page IconTo Next Page
To Next Page IconTo Next Page
To Previous Page IconTo Previous Page
To Previous Page IconTo Previous Page
Loading...
Rockwell Automation Publication 2198-RM004C-EN-P - March 2022 47
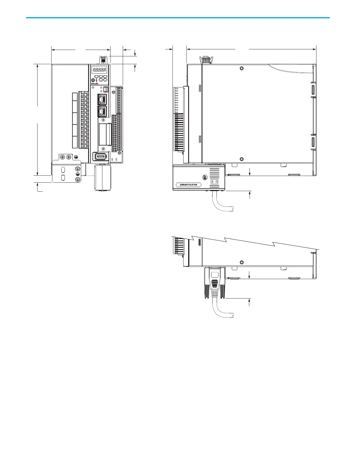
Chapter 4 Dimensions, Cables, and Wiring
Figure 20 - Catalog Numbers 2198-E1020-ERS, 2198-E2030-ERS, 2198-E4004-ERS, 2198-E4007-ERS,
and 2198-E4015-ERS
37.0
(1.50)
13.0
(0.50)
95.0
(3.74)
20.0
(0.79)
208
(8.20)
178
(7.08)
11.0
(0.43)
5100
2
1
NET
MOD
CHARGE
I/0
AUX
23.0
(0.89)
25.0
(0.97)
U
V
W
DC+
ISH
ESH
P1
P2
DC–
L1
L2
L3
L1C
L2C

Table of Contents

Related product manuals