EasyManua.ls Logo

Rockwell Automation Allen-Bradley Kinetix 300

Rockwell Automation Allen-Bradley Kinetix 300
75 pages
To Next Page IconTo Next Page
To Next Page IconTo Next Page
To Previous Page IconTo Previous Page
To Previous Page IconTo Previous Page
Loading...
48 Rockwell Automation Publication 2198-RM004C-EN-P - March 2022
Chapter 4 Dimensions, Cables, and Wiring
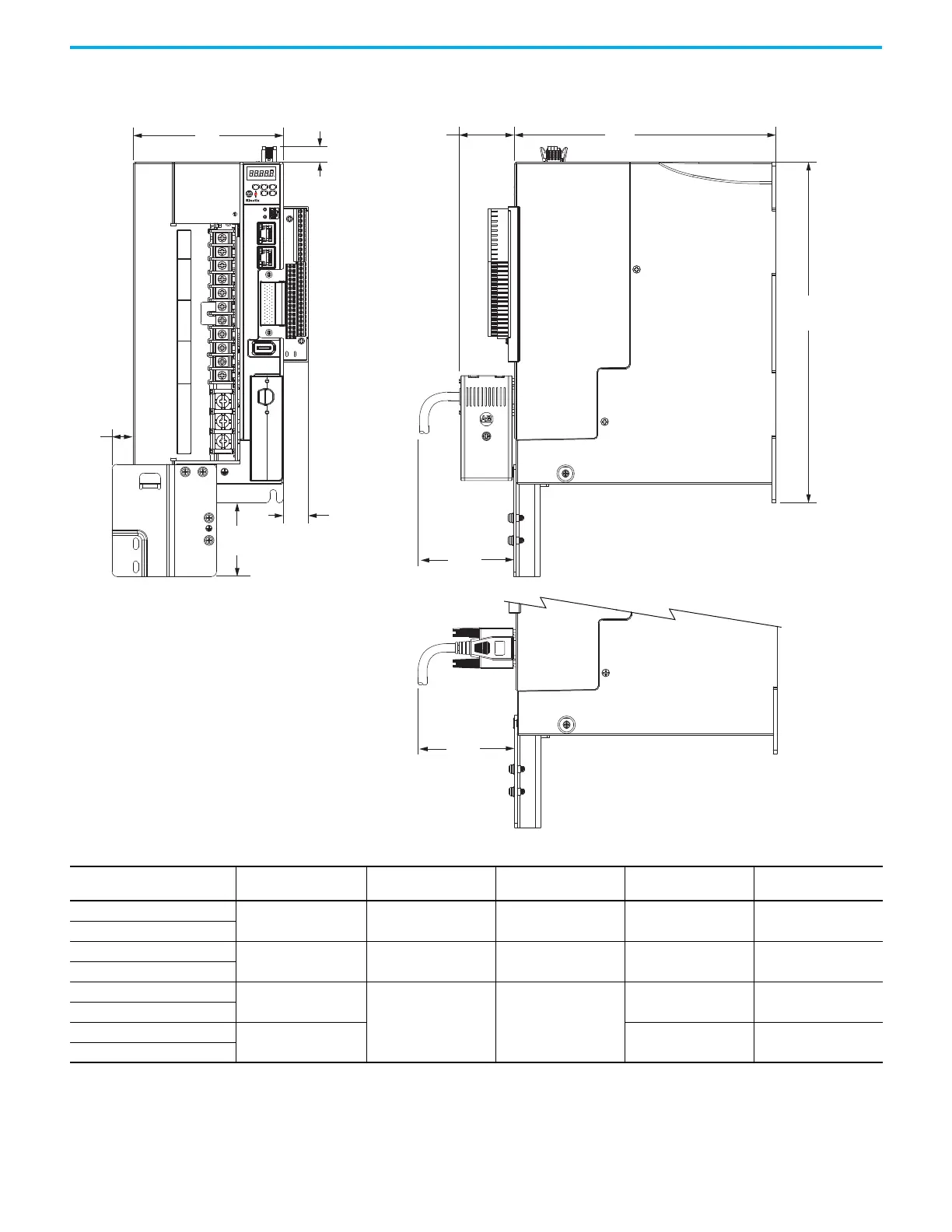
Figure 21 - Catalog Numbers 2198-E4020-ERS, 2198-E4030-ERS, 2198-E2055-ERS, 2198-E4055-ERS,
2198-E2075-ERS, 2198-E4075-ERS, 2198-E2150-ERS, and 2198-E4150-ERS
5100
2
1
NET
MOD
CHARGE
I/0
AUX
U
V
W
DC+
ESH
P1
P2
DC–
L1
L2
L3
L1C
L2C
A
13.0
(0.50)
44.0
(1.75)
20.0
(0.79)
B
C
D
E
95.0
(3.70)
107
(4.20)
Cat. No.
A
mm (in.)
B
mm (in.)
C
mm (in.)
D
mm (in.)
E
mm (in.)
2198-E4020-ERS
110 (4.33) 14.0 (0.55) 38.0 (1.50) 204 (8.02) 260 (10.24)
2198-E4030-ERS
2198-E2055-ERS
120 (4.72) 37.0 (1.47) 59.0 (2.32) 209 (8.24) 273 (10.75)
2198-E4055-ERS
2198-E2075-ERS
141 (5.55)
16.0 (0.65) 35.0 (1.36)
225 (8.87) 312 (12.28)
2198-E4075-ERS
2198-E2150-ERS
186 (7.32) 281 (11.08) 390 (15.35)
2198-E4150-ERS

Table of Contents

Related product manuals