EasyManua.ls Logo

Rockwell Automation Allen-Bradley Kinetix 300

Rockwell Automation Allen-Bradley Kinetix 300
75 pages
To Next Page IconTo Next Page
To Next Page IconTo Next Page
To Previous Page IconTo Previous Page
To Previous Page IconTo Previous Page
Loading...
46 Rockwell Automation Publication 2198-RM004C-EN-P - March 2022
Chapter 4 Dimensions, Cables, and Wiring
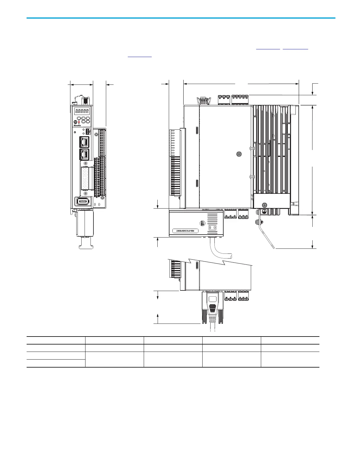
Kinetix 5100 Drive Dimensions
The Kinetix 5100 drive dimensions are shown in Figure 19, Figure 20, and
Figure 21
.
Figure 19 - Catalog Numbers 2198-E1004-ERS, 2198-E1007-ERS, and 2198-E1015-ERS
2
1
I/0
AUX
16.0
(0.65)
23.0
(0.89)
45.0
(1.76)
20.0
(0.79)
A
5100
NET
MOD
CHARGE
B
C
D
57.0
(2.30)
Cat. No. A mm (in.) B mm (in.) C mm (in.) D mm (in.)
2198-E1004-ERS 35.0 (1.37) 178 (7.0) 170 (6.68) 52.0 (2.05)
2198-E1007-ERS
50.0 (2.0) 188 (7.41) 180 (7.10) 47.0 (1.84)
2198-E1015-ERS

Table of Contents

Related product manuals