EasyManua.ls Logo

Sharp AR-M550U - Page 232

Sharp AR-M550U
460 pages
Print Icon
To Next Page IconTo Next Page
To Next Page IconTo Next Page
To Previous Page IconTo Previous Page
To Previous Page IconTo Previous Page
Loading...
: Feb. 9 2004
1
AR-M550/M620/M700 SETTING AND ADJUSTMENTS 7 - 17
This adjustment is needed in the following situations:
The CCD unit has been removed from the machine.
The CCD unit has been replaced.
Images are not correctly magnified in the sub-scanning direction.
The MFP control PWB has been replaced.
The EEPROM on the MFP control PWB has been replaced.
The scan control PWB has been replaced.
The EEPROM on the scan control PWB has been replaced.
U2 trouble has occurred.
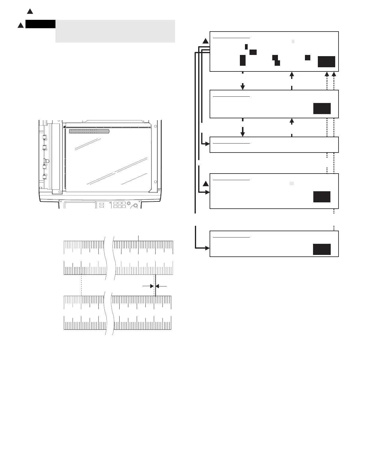
1) Place a scale on the original table as illustrated below.
2) Make a normal copy on A4 paper.
3) Measure the lengths of the copied image of the scale and the
actual scale.
4) Determine the image magnification factor using the following for-
mula:
Image magnification factor (%) = Copy dimension/original dimen-
sion x 100
Example: Compare the copy and original dimensions by aligning
the scale's 10 mm position with the copied image's 10 mm position.
Image magnification factor (%) = 99 / 100 x 100 = 99
If the image magnification factor is within the spec (100±0.8%), no
adjustment is required; otherwise, do the following steps.
5) Go through the modes specified in Simulation 48-1.
6) Select the number that corresponds to the adjustment item CCD
(SUB) using the numeric keypad.
This adjustment item is intended to adjust the image magnification
in the sub scanning direction in original table mode (CCD).
7) Press the Start key.
8) Adjust the image magnification factor by entering an appropriate
value through the numeric keypad.
9) Press the P or Start key
Pressing the Start key starts copy operation as well as applying the
adjustment value.
Repeat steps 2 to 9 until the image magnification factor is satisfactory.
ADJ 6B Adjust the image magnification in the
sub-scanning direction in original table
mode (CCD)
1
10 20 30 40
50 60 70
80 90 100 110
120130 140
10 20 90 100 110
10 20 90 100 110
100mm scale
(Original)
Copy image
(1mm (1%)
shorter than
the original)
0.8mm
Select 2, and
press [START] key.
Press [START] key, or
press [CUSTOM SETTINGS] key.
50
1
2
Select other than 0 - 2,
and press [START] key.
Press [CUSTOM SETTINGS] key.
Press [START] key.
Press [CUSTOM SETTINGS] key,
or terminate copying.
Press [START] key, or
press [CUSTOM SETTINGS] key.
SIMULATION 48-1
MAGNIFICATION ADJUSTMENT. SELECT 0-7, AND PRESS START.
0.TRAY SELECT 1 1.PRINT START
2.MAGNIFICATION 100
3.CCD(MAIN) 50 4.CCD(SUB) 50 5.SPF(SUB) 50
6.CIS(MAIN) 50 7.SPF(MAIN) 50
SIMULATION 48-1
MAGNIFICATION ADJUSTMENT. INPUT VALUE 0-99, AND PRESS
START.
4.CCD(SUB)
SIMULATION 48-1
MAGNIFICATION ADJUSTMENT. NOW COPYING.
SIMULATION 48-1
MAGNIFICATION ADJUSTMENT. SELECT 1-16, AND PRESS START.
(FEED TRAY)
1.TRAY1 2.TRAY2 3.TRAY3 4.TRAY4
5.BPT 6.LCC
(ABOVE+10: DUPLEX MODE)
Select 1, and
press [START] key.
Select 0, and press [START] key.
1
1
100
SIMULATION 48-1
MAGNIFICATION ADJUSTMENT.
(MAGNIFICATION)
INPUT 25-400(%)

Table of Contents

Other manuals for Sharp AR-M550U

Related product manuals