EasyManua.ls Logo

SICK CLV61 DualPort Series - Page 17

SICK CLV61 DualPort Series
68 pages
Print Icon
To Next Page IconTo Next Page
To Next Page IconTo Next Page
To Previous Page IconTo Previous Page
To Previous Page IconTo Previous Page
Loading...
15
(0.59)
10
(0.39)
22.5
(0.89)
2 (0.08)
5.7 (0.22)
105°
80 (3.15)
96 (3.78)
65 (2.56)
59.5 (2.34)
(15
(0.59))
(14.15
(0.56))
65.2 (2.57)
50°
38 (1.5)
60.4 (2.38)
16.4
(0.65)
35.3
(1.39)
(24.1
(0.95))
9 (0.35)85 (3.35)
(30.6 (1.2))
60.5 (2.38)
32.8
(1.29)
65.3 (2.57)
Ready
G Read
N Read
HW Err
UserDef1
SF
BF
P1 LNK/ACT
P2 LNK/ACT
1
4
2
3
1
2
3
4
6
5
7
3
1
P1
P2
42
8
ã
â
á
à
ß
9
10
(0.39)
5.7
(0.22)
22.5
(0.89)
10 (0.39)
(14.15
(0.56))
(15
(0.59))
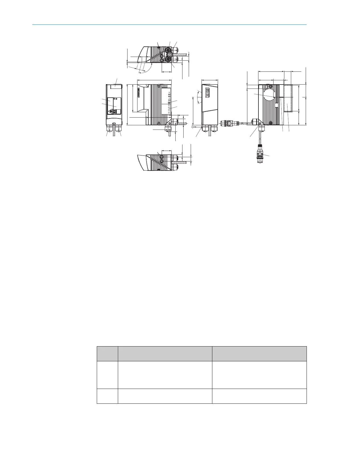
Figure 5: CLV61x Dual Port: design and device dimensions with side reading window (in mm or
inches)
1
M5 blind tapped holes, 5 mm deep (2 x), for mounting the device
2
P1 (PROFINET port 1) connection, female connector, M12, 4-pin, D-coded
3
Cable (0.9 m), type-dependent with POWER connection (male connector, M12, 4-pin, A-
coded) or with POWER + trigger input connection (male connector, M12, 5-pin, A-coded)
4
P2 (PROFINET port 2) connection, M12, female connector, 4-pin, D-coded
5
Internal impact point: Rotation point of the variable direction laser beam
6
Reading window, side orientation
7
Central position of the deflected laser beam in the V-shaped aperture angle
8
Swivel connector unit (max 180° rotation angle from end position to end position)
9
Reference point for reading distance from device (housing edge) to object
ß
LED (4 x), status indicator for PROFINET
à
RGB LED (1 x), status indicator with signal color allocation for events
á
Type label
â
Laser warning label
ã
Cover for USB connection
2)
(female connector, 4-pin, Micro-B type) or for memory card
shaft (microSD), type-dependent
3.2.2 Scope of delivery
The delivery of the device includes the following components:
Table 4: CLV61x Dual Port (PROFINET): scope of delivery
No. of
units
Component Notes
1 Device in the version ordered Both M12 female connectors sealed with
tightly screwed on protective plugs.
Without holders and bus connecting
cables.
1 Multilingual safety notes in a printed doc‐
ument
Provides information about the require‐
ments for safe use of the product.
Associated components not contained in the delivery:
2)
Service interface, for temporary use only
PRODUCT DESCRIPTION 3
8017842/ZOK7/2019-02-01 | SICK O P E R A T I N G I N S T R U C T I O N S | CLV61x DualPort (PROFINET)
17
Subject to change without notice

Table of Contents

Related product manuals