EasyManua.ls Logo

Siemens LME7 Series - Connection Diagram AGG9 Connector; 9.1 LME71

Siemens LME7 Series
106 pages
To Next Page IconTo Next Page
To Next Page IconTo Next Page
To Previous Page IconTo Previous Page
To Previous Page IconTo Previous Page
Loading...
42/106
Building Technologies Basic Documentation LME7... CC1P7105en
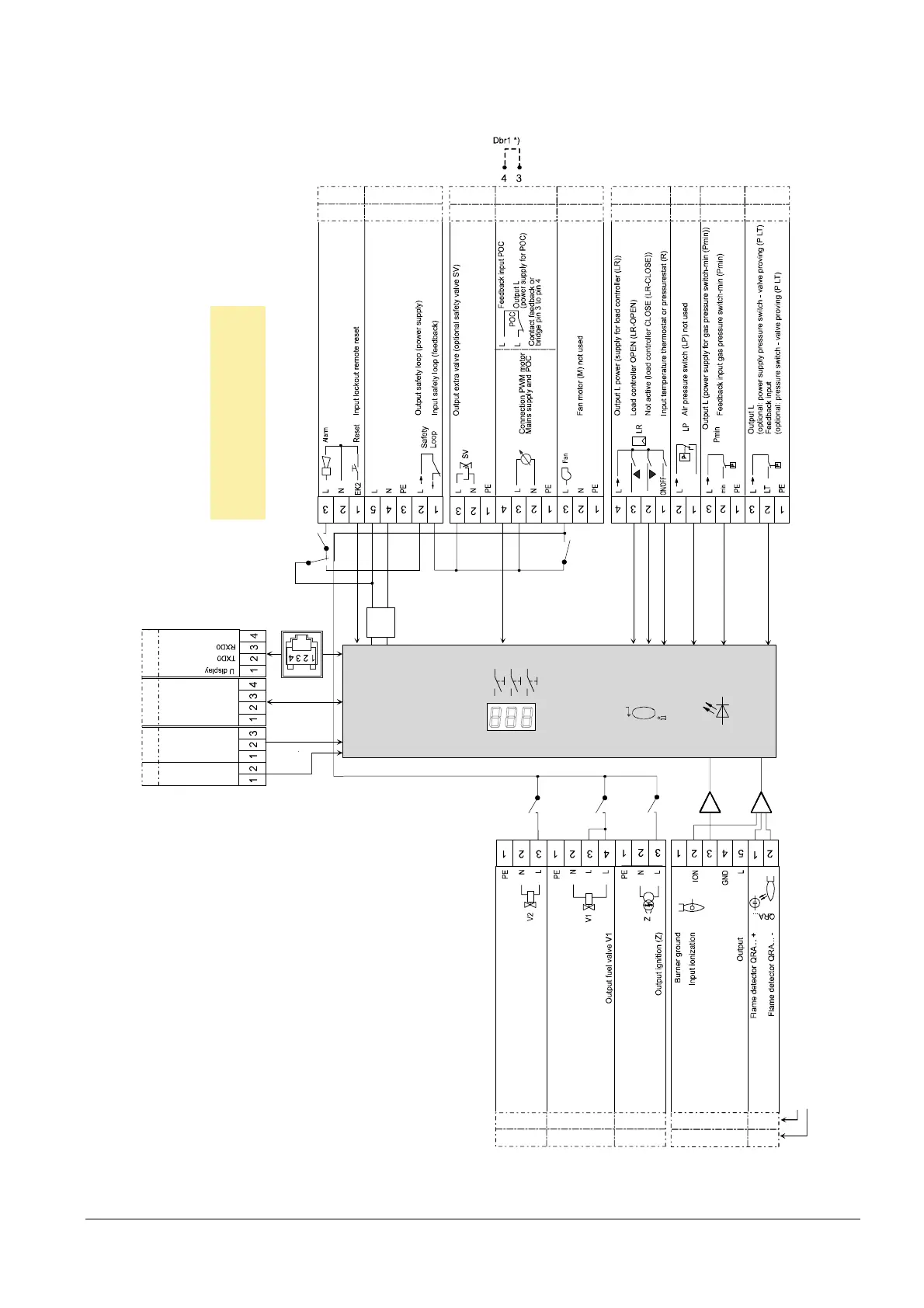
9 Connection diagram AGG9 connector 17.04.2018
9 Connection diagram AGG9 connector
9.1 LME71
X56
AGG9. 822 83 1 841
7
1
0
5
d
1
0
9
e
n
/
0
3
1
6
GND
Coding
Connector marking
NT
N L
L
M
E
7
1
.
0
0
0
.
.
.
L
E
D
K7
K5
F SV2
FSV1
K4
K1
K2/1
D
C
2
4
V
o
u
t
p
u
t
P
W
M
s
i
g
n
a
l
o
u
t
p
u
t
H
a
l
l
s
i
g
n
a
l
i
n
p
u
t
G
N
D
µC
B
C
I
O utp ut fu el va lve V2
O
u
t
p
u
t
a
l
a
r
m
N
o
t
u
s
e
d
A
n
a
l
o
g
i
n
p
u
t
K2/2
+
-
A
/reset
Not us ed
Option
Note!
*) If POC not used,
wire link Dbr1 must be connected!
Β
BCI
AGG9. 310 405 304 504 209
03K34
03K66
05K37
02K43
05K30 03K57
03K105
02K02
03K54
03K30
04K77
AGG9. 302 501 309 401 301 403 203 306 313
03K15
04K22
04K01
Figure 9: Connection diagram LME71 AGG9

Table of Contents

Other manuals for Siemens LME7 Series

Related product manuals