EasyManua.ls Logo

Siemens SIMOTION D45 Series - Page 39

Siemens SIMOTION D45 Series
76 pages
Print Icon
To Next Page IconTo Next Page
To Next Page IconTo Next Page
To Previous Page IconTo Previous Page
To Previous Page IconTo Previous Page
Loading...
Interfaces
3.4 Digital inputs/digital outputs
D4x5
Manual, 03/2007 Edition
39
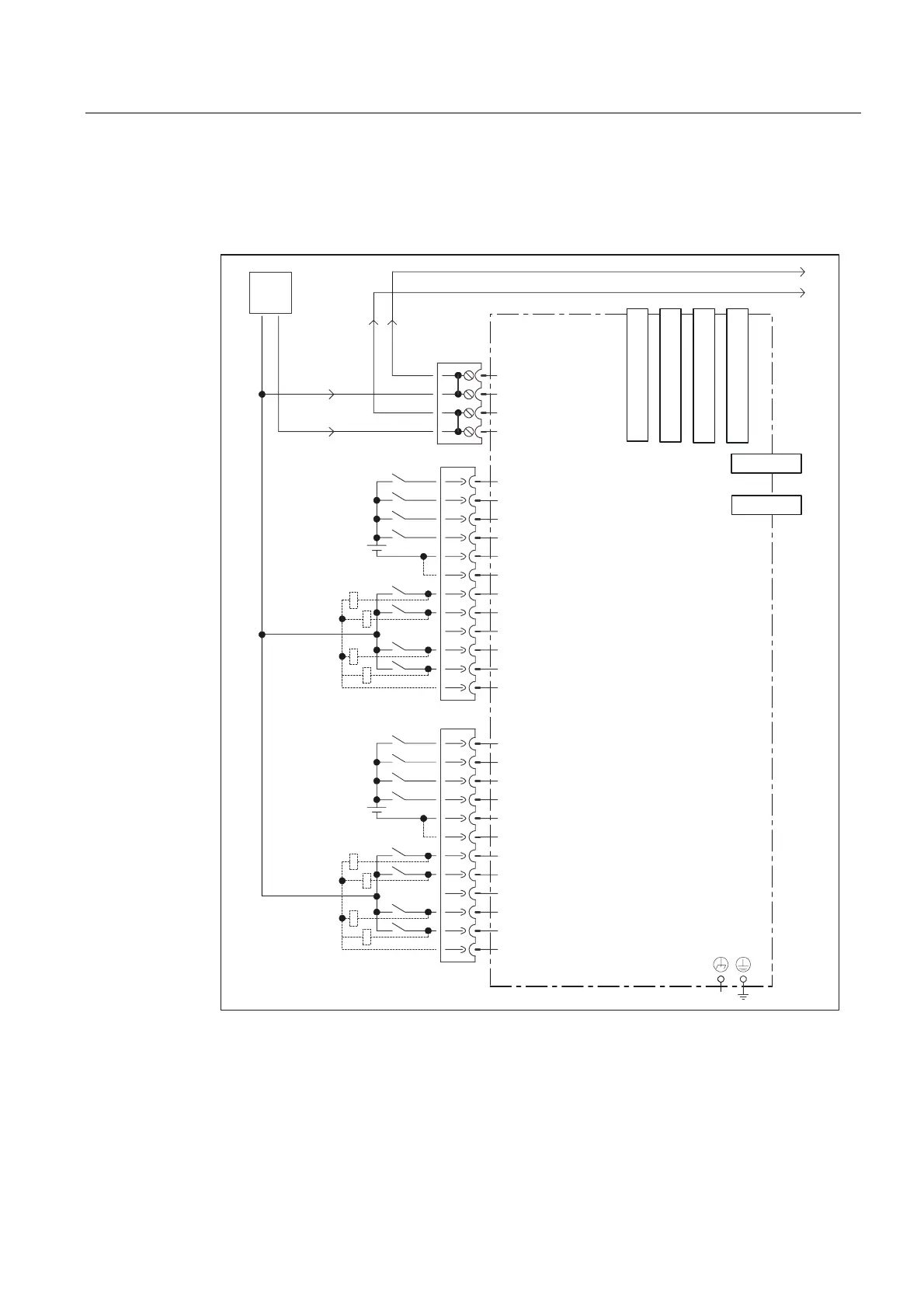
Wiring and block diagram for SIMOTION D using SIMOTION D435 as an example
The following figure shows the wiring diagram and the block diagram of the digital inputs and
digital inputs/outputs of the SIMOTION D435.
0
;;;;
;
0




',
;
',
',
',
0
0
','2



','2
','2
','2
0
0
',
;
',
',
',
0
0
','2



','2
','2
','2
0
0
9
0
;
0
0
0
;
([W
9
'5,9(&/L4VRFNHW
'5,9(&/L4VRFNHW
'5,9(&/L4VRFNHW
'5,9(&/L4VRFNHW
6,027,21'
352),%86
352),%86
,QSXWVRXWSXWV
PXVWEHVKLHOGHG
-XPSHURSHQ
HOHFWULFDOLVRODWLRQIRU
GLJLWDOLQSXWV',
&DQEHLQGLYLGXDOO\
DVVLJQHGDVLQSXWRXWSXW
Figure 3-4 Wiring diagram and block diagram of the digital inputs/outputs

Table of Contents

Related product manuals