EasyManua.ls Logo

Siemens SIPROTEC 7SJ61 - Switch Elements on the Pcbs

Siemens SIPROTEC 7SJ61
454 pages
Print Icon
To Next Page IconTo Next Page
To Next Page IconTo Next Page
To Previous Page IconTo Previous Page
To Previous Page IconTo Previous Page
Loading...
Mounting and Commissioning
3.1 Mounting and Connections
SIPROTEC, 7SJ61, Manual
C53000-G1140-C210-1, Release date 02.2008
266
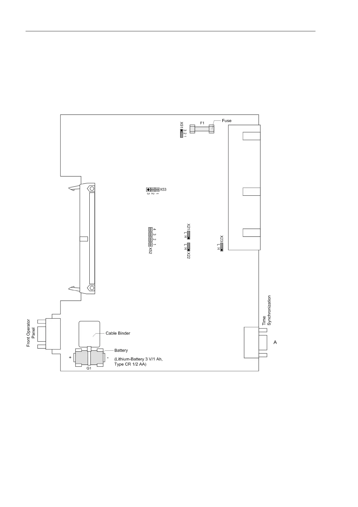
3.1.2.3 Switch elements on the PCBs
Three different releases of the A–CPU board are available. They are shown in the following figures. The loca-
tion of the miniature fuse (F1) and of the buffer battery (G1) are also shown in the following figures.
Processor Board A-CPU for 7SJ61.../DD
Figure 3-4 Processor printed circuit board A–CPU for devices up to release .../DD
with jumpers settings required for the board configuration
The provided nominal voltage of the integrated power supply is checked according to Table 3-2, the selected
control voltages of the binary inputs BI1 to BI7 according to Table 3-3.

Table of Contents

Other manuals for Siemens SIPROTEC 7SJ61

Related product manuals