EasyManua.ls Logo

Siemens SIPROTEC 7SJ61 - Page 268

Siemens SIPROTEC 7SJ61
454 pages
Print Icon
To Next Page IconTo Next Page
To Next Page IconTo Next Page
To Previous Page IconTo Previous Page
To Previous Page IconTo Previous Page
Loading...
Mounting and Commissioning
3.1 Mounting and Connections
SIPROTEC, 7SJ61, Manual
C53000-G1140-C210-1, Release date 02.2008
268
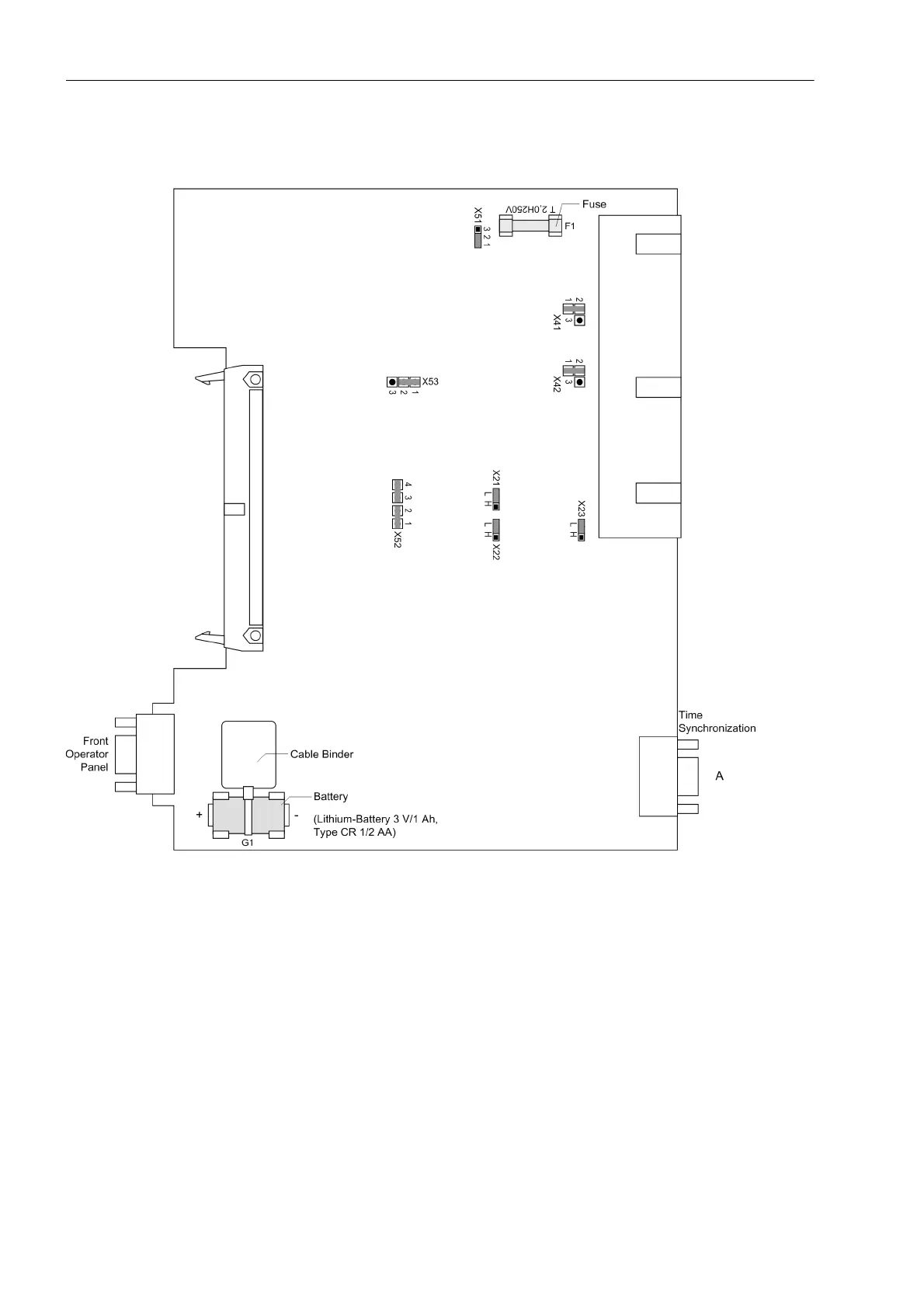
Processor Board A-CPU for 7SJ61.../EE
Figure 3-5 Processor printed circuit board A–CPU for devices releases ../EE and higher
with jumpers settings required for the module configuration (up to firmware V4.6)
The preset nominal voltage of the integrated power supply is checked according to Table 3-7, the pickup volt-
ages of the binary inputs BI1 to BI3 are checked according to Table 3-8, and the contact mode of the binary
outputs (BO1 and BO2) is checked according to Table 3-6.

Table of Contents

Other manuals for Siemens SIPROTEC 7SJ61

Related product manuals