EasyManua.ls Logo

Siemens SIPROTEC 7SJ61 - Page 270

Siemens SIPROTEC 7SJ61
454 pages
Print Icon
To Next Page IconTo Next Page
To Next Page IconTo Next Page
To Previous Page IconTo Previous Page
To Previous Page IconTo Previous Page
Loading...
Mounting and Commissioning
3.1 Mounting and Connections
SIPROTEC, 7SJ61, Manual
C53000-G1140-C210-1, Release date 02.2008
270
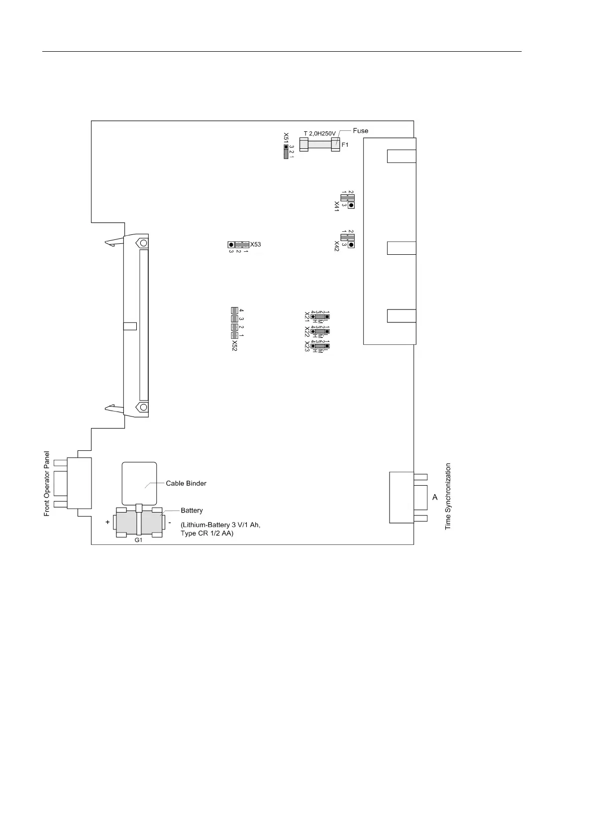
Processor Board A–CPU for 7SJ61.../FF
Figure 3-6 Processor printed circuit board A–CPU for devices releases .../FF and higher
with jumpers settings required for the module configuration (as from firmware V4.7)

Table of Contents

Other manuals for Siemens SIPROTEC 7SJ61

Related product manuals