EasyManua.ls Logo

Siemens SIPROTEC 7SS523 V3.2 - 2.1 Central Unit; 2.1.1 Front View

Siemens SIPROTEC 7SS523 V3.2
430 pages
To Next Page IconTo Next Page
To Next Page IconTo Next Page
To Previous Page IconTo Previous Page
To Previous Page IconTo Previous Page
Loading...
Central Unit
15
7SS52 V4 Manual
C53000-G1176-C182-1
2.1 Central Unit
The central unit is installed in an ES902 C (SIPAC) subrack. This subrack can addi-
tionally be fitted in a wall-mounted housing or in an 8MF cubicle.
On account of the modular design, different variants and degrees of expansion can be
coordinated with the station configuration.
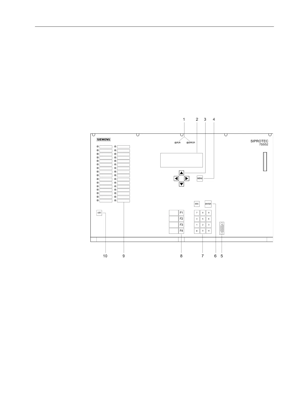
2.1.1 Front View
Figure 2-1 Front view of the central unit
1 LEDs for the indication of operating states
2 LCD for textual display of process and device information
3 Navigation keys for moving through the operating tree
4 MENU key for calling up the main menu
5 9-pole female sub D connector for connecting a PC running DIGSI
6 ENTER for confirmation of changes or for acknowledging information displayed
in the LCD
ESC key to move up one level
7 Numeric keypad for entering numeric values

Table of Contents

Related product manuals