EasyManua.ls Logo

Siemens SIPROTEC 7SS523 V3.2 - A.4.3 Jumper Settings of the D-CPU Module

Siemens SIPROTEC 7SS523 V3.2
430 pages
To Next Page IconTo Next Page
To Next Page IconTo Next Page
To Previous Page IconTo Previous Page
To Previous Page IconTo Previous Page
Loading...
Appendix
344
7SS52 V4 Manual
C53000-G1176-C182-1
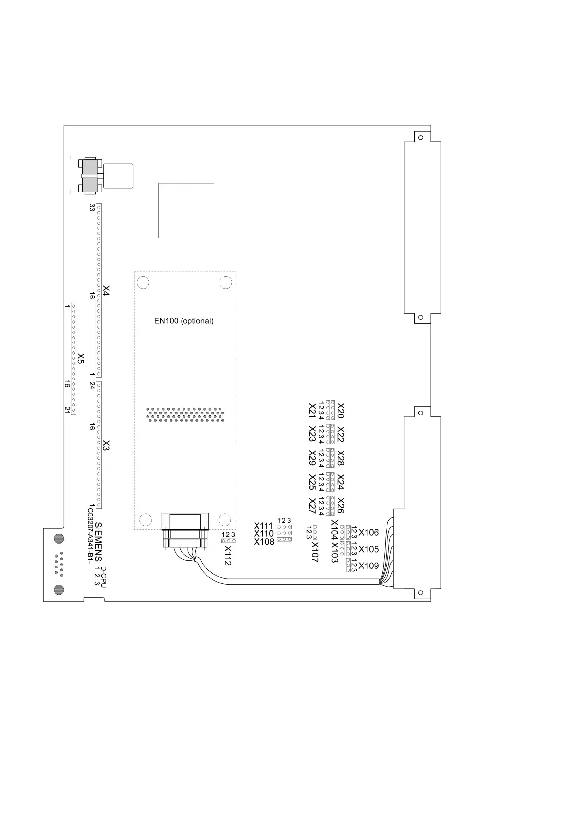
A.4.3 Jumper Settings of the D-CPU Module
Figure A-9 Location of the jumpers on the D-CPU module
The service port can be configured as RS232, RS485 or as optical interface. Insert the
jumpers according to Table A-13, page 345.
The Ethernet interface module EN100 has no plug-in jumpers.

Table of Contents

Related product manuals