EasyManua.ls Logo

Siemens SIPROTEC 7SS523 V3.2 - 2.3.2 Device Connections

Siemens SIPROTEC 7SS523 V3.2
430 pages
To Next Page IconTo Next Page
To Next Page IconTo Next Page
To Previous Page IconTo Previous Page
To Previous Page IconTo Previous Page
Loading...
Connection Method
25
7SS52 V4 Manual
C53000-G1176-C182-1
7SS525 bay unit
Panel flush
mounting or
cubicle mounting
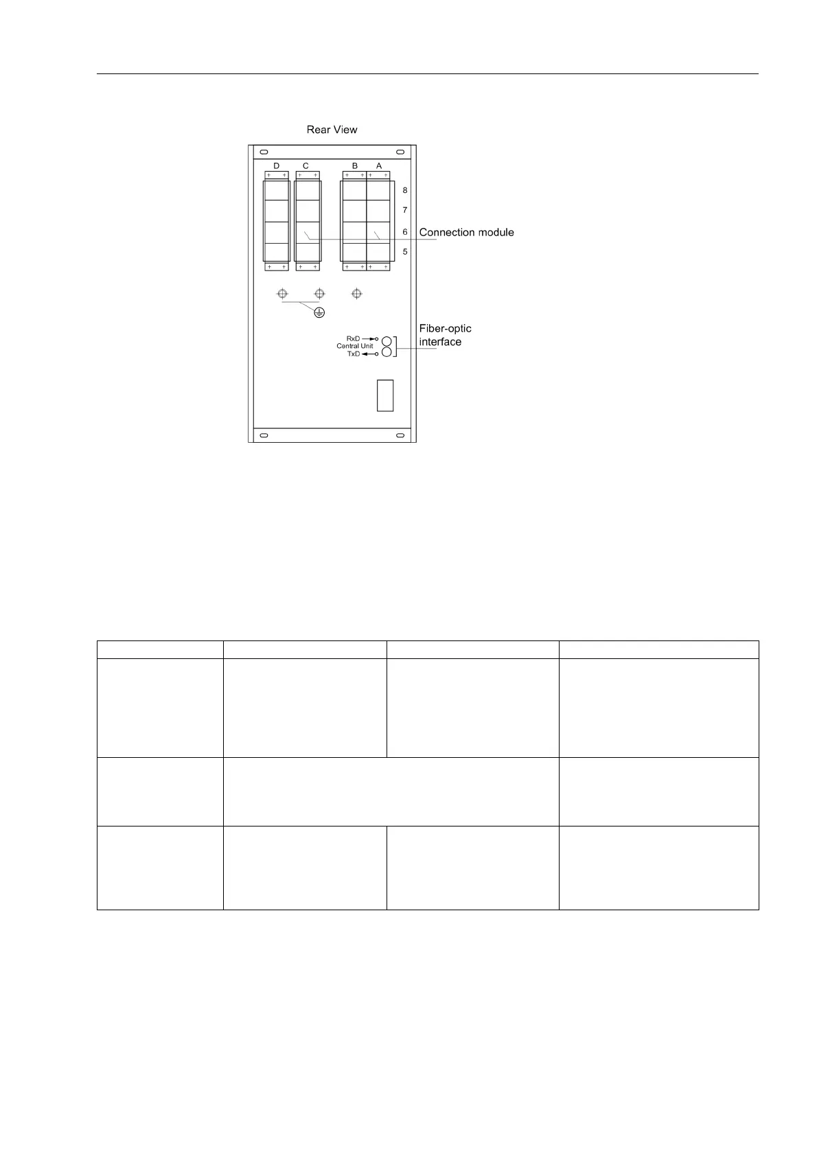
Figure 2-9 Device connections on bay unit 7SS525
2.3.2 Device Connections
Tabelle 2-1 Overview of device connections
Variant Current connections Voltage connections FO connections
Central unit Screw connection
for max. 1.5 mm²
and
Double leaf-spring-crimp con-
tact for max. 1.5 mm²
Integrated
ST connector for
FO connection,
glass fiber 62.5/125 µm
FO duplex outdoor cable or
FO duplex indoor cable
Bay unit
Panel surface
mounting
Screw-type terminals
for stranded wires with max. 4 mm²
or
for solid wires with max. 7 mm²
Integrated
ST connector for
FO connection,
glass fiber 62.5/125 µm
Bay unit
Panel flush mount-
ing or
cubicle mounting
Screw connection
for max. 4 mm²
and
Double leaf-spring-crimp
contact for max. 2.5 mm²
Screw connection
for max. 1.5 mm²
and
Double leaf-spring-crimp con-
tact for max. 1.5 mm²
Integrated
ST connector for
FO connection,
glass fiber 62.5/125 µm

Table of Contents

Related product manuals